V této části je uveden popis některých pojmů, které se běžně používají při popisování součástí potrubní sítě.
Pojmy pro stavební objekty
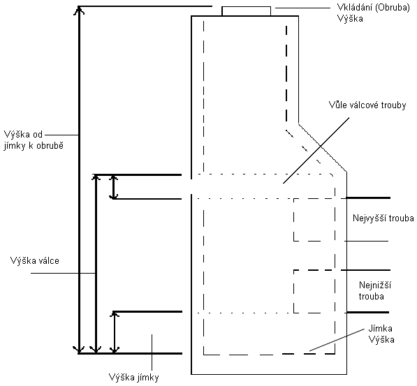
- Obruba Horní výška stavebního objektu šachty nebo jímky (s více přítoky).
- Rám Podpěra krytu šachty nebo mřížka jímky. Horní výška rámu, krytu a mřížky se zpravidla shoduje s výškou vložení (obruby.
- Kryt Horní přístupový kryt šachty, který slouží k jejímu servisu nebo kontrolám. Kryty mají zpravidla kruhový tvar, ale mohou být také trojúhelníkové, takže při vyjmutí nezapadnou do šachty. Kryt je usazen v rámu a bývá zpravidla vyroben z litiny.
- Mřížka Horní kryt jímky, který obvykle obsahuje řadu otvorů, které umožňují odtok povrchové vody do stavebního objektu. Mřížka je usazena v rámu a bývá zpravidla vyrobena z litiny. Mřížky mohou mít různé tvary, ale zpravidla jsou kruhové nebo čtvercové.
- Jímka a hloubka mezi dnem potrubí a dnem šachty Jímka představuje spodní část nebo plavební komoru uvnitř stavebního objektu s přípojkami, jako je například jímka. Oblast jímky se někdy používá jako zásobník k zachycování sutě. Hloubka mezi dnem potrubí a dnem šachty představuje vzdálenost od dna nebo vnitřku stavebního objektu k nejnižšímu bodu dna všech potrubí k ní připojených. Hloubka mezi dnem potrubí a dnem šachty pro konkrétní typ stavebního objektu může být různá v závislosti na požadavcích na projekt. Šachty obvykle nemají žádnou hloubku mezi dnem potrubí a dnem šachty.
Následující obrázek uvádí umístění komponent typického stavebního objektu s přípojkami.
Pojmy vztahující se k potrubí
- Dno potrubí Výška dolní vnitřní části potrubí. Bývá také označována jako proudnice rigolu.
- Vrchol potrubí Výška horní vnitřní části potrubí.
- Výška v ose potrubí Výška osy potrubí.
- Překrytí nebo hloubka Odkazuje na hloubku materiálu nad nejvyšší vnější částí potrubí.
- Sklon Při použití sklonu k odkazování na sklon potrubí se jedná o měřítko strmosti. U potrubí je sklon definován zvýšením (nebo poklesem) přes vedení, přičemž výška je rozdíl ve zvýšení podél vedení délky potrubí, měřená horizontálně. Sklon se zpravidla vyjadřuje v procentech. Sklon potrubí 2 % například znamená, že pro každých 100 stop horizontální délky potrubí se potrubí zvýší o 2 stopy. V aplikaci Autodesk Civil 3D lze sklon vyjádřit řadou způsobů v dialozích a popiscích ve výkresech.