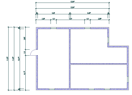
Assoziative AEC-Bemaßungen sind stilbasierte Beschriftungsobjekte, die automatisch aktualisiert werden, wenn sich das verknüpfte Objekt ändert. Die AEC-Bemaßungsstile definieren die Maßpunkte, durch die wiederum festgelegt wird, welche Bemaßungen für jedes Objekt angezeigt werden, das mit Hilfe des Stils bemaßt werden kann.
Im unten stehenden Beispiel sind die Wandlängen, Öffnungsbreiten und Wandverschneidungen als Maßpunkte im Stil festgelegt. Wird eine Tür breiter gestaltet, werden die Bemaßungen aktualisiert und die neuen Werte angezeigt.

Sie können Stile für bestimmte Objekttypen definieren. Beispielsweise kann ein AEC-Bemaßungsstil festlegen, dass bei Wänden Bemaßungen für Längen, maximale Öffnungsbreiten von Fenstern und Wandverschneidungen angezeigt werden. Durch einen anderen AEC-Bemaßungsstil für Massenelemente können die Kanten oder die Mitte von Massenelementen als Maßpunkte festgelegt werden.
Für verschiedene Ansichten können Sie auch unterschiedliche Maßpunkte definieren. Beispielsweise möchten Sie in einem Plan mit niedrigem Detailgrad eventuell nur äußeren Umgrenzungen eines Gebäudes bemaßen, in einem Plan mit hohem Detailgrad hingegen die Wandlängen wie auch die Öffnungen in Wänden.
Im AEC-Bemaßungsstil können Sie bis zu zehn Maßketten festlegen, jede mit verschiedenen Maßpunkten. Beispielsweise kann die erste Kette Wandlängen und Öffnungen in Wänden bemaßen, während die zweite Kette Strukturkomponenten von aus mehreren Komponenten bestehenden Wänden bemaßt.
Im AEC-Bemaßungsstil können Sie ebenfalls festlegen, ob die Hochstellung bei Bemaßungen benutzt wird und ob die Hilfslinienlänge fest oder variabel ist.