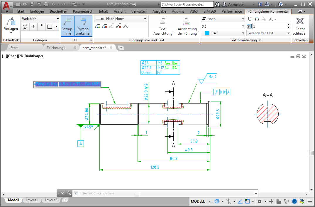
Der Befehl AMNOTE wurde verbessert, sodass statt dem Dialogfeld Anmerkungssymbol eine kontextabhängige Multifunktionsleiste angezeigt wird.

Die kontextabhängige Registerkarte der Multifunktionsleiste wird angezeigt, sobald Sie Punkte für die Scheitelpunkte der Führungslinie auswählen. Ein Direktbearbeitungseditor ermöglicht Ihnen die Eingabe des Anmerkungstextes auf die gleiche Weise wie beim Befehl MTEXT. Alle Funktionen, die im Dialogfeld Anmerkungssymbol verfügbar waren, sind auch auf der neuen kontextabhängigen Registerkarte verfügbar. Wenn Sie weiterhin lieber das Dialogfeld Anmerkungssymbol verwenden möchten, können Sie die kontextabhängige Registerkarte deaktivieren, indem Sie die Systemvariable AMNOTETAB auf 0 setzen.