LiveView-Übung: Zusammenführen von Vektoren

In dieser Übung aktualisieren Sie eine Zeichnung und führen neue Vektordaten mit vorhandenen Rasterdaten zusammen.

So führen Sie Vektor- mit Rasterdaten zusammen
1

Öffnen Sie die Datei C:\Programme\Autodesk\AutoCAD Raster Design 2019\Getting Started Guide\LiveView_Merge.dwg.

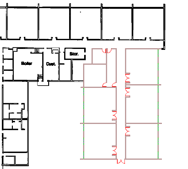
Sie sehen die Zeichnung einer Schule. Die weißen Rasterdaten geben das ursprüngliche Gebäude und die farbigen Vektordaten die zusätzlichen Klassenzimmer an.

2 Klicken Sie auf Raster ZusammenführenRasterstifte konfigurieren, um das Dialogfeld Rasterstifteinstellungen zu öffnen.
3

Wählen Sie die rote Stiftfarbe, legen Sie die Stiftbreite auf 1 Pixel fest, und klicken Sie auf OK.

Bei dieser Einstellung werden die Türen mit dünneren Rasterlinien gezeichnet als die Wände.

4

Klicken Sie auf Raster ZusammenführenVektor mit Raster. Wählen Sie den Vektorblock der neuen Klassenzimmer aus, indem Sie einen Rahmen um ihn herum zeichnen, und klicken Sie mit der rechten Maustaste, um die Auswahl aufzuheben. Drücken Sie die EINGABETASTE, um die Vorgabeeinstellung zum Löschen der Vektoren nach dem Zusammenführen zu übernehmen.

Die Vektordaten werden mit den Rasterdaten zusammengeführt.