In dieser Übung bereinigen Sie eine Zeichnung, indem Sie Flecken entfernen.
| So entfernen Sie Flecken aus einem Bild | ||
|---|---|---|
| 1 |
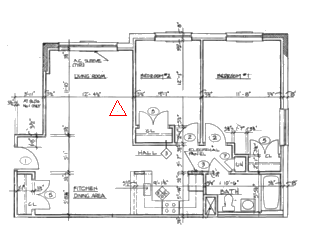
Öffnen Sie die Datei C:\Programme\Autodesk\2019\Getting Started\ LiveView_Clean.dwg Diese Zeichnung enthält ein rotes Vektordreieck um einen der größten Flecken im Bild. |
![]() |
| 2 | Vergrößern Sie die Anzeige, um den Fleck deutlich im roten Dreieck zu sehen. |
![]() |
| 3 | Klicken Sie auf Raster Bereinigen Flecken entfernen.
Drücken Sie die EINGABETASTE, um das gesamte Bild zu verarbeiten. |
![]() |
| 4 | Klicken Sie auf den Fleck im roten Dreieck.
Das System meldet die Größe des Flecks (0,025 Zeicheneineiten bzw. 5 Pixel) und markiert alle Flecken, die kleiner als dieser Wert sind und somit entfernt werden sollen. |
![]() |
| 5 | Überprüfen Sie die Flecken im Bild per Pan und Zoom. Klicken Sie auf die Flecken, die nicht entfernt werden sollen (z. B. auf den Punkt in A.C. SLEEVE oben links), um die Markierung aufzuheben.
Drücken Sie die EINGABETASTE, um die markierten Flecken zu entfernen. |
![]() |
| 6 | Oben links sehen Sie einige Flecken, die nicht entfernt wurden. Diese Flecken sind größer als derjenige, den Sie im roten Dreieck ausgewählt haben. Diese können Sie manuell löschen. |
![]() |