Überprüfen Sie verschiedene Arbeitsablaufbeispiele für die Bemaßung von Einbauteilen in Fertigteil-Fertigungsplanansichten.
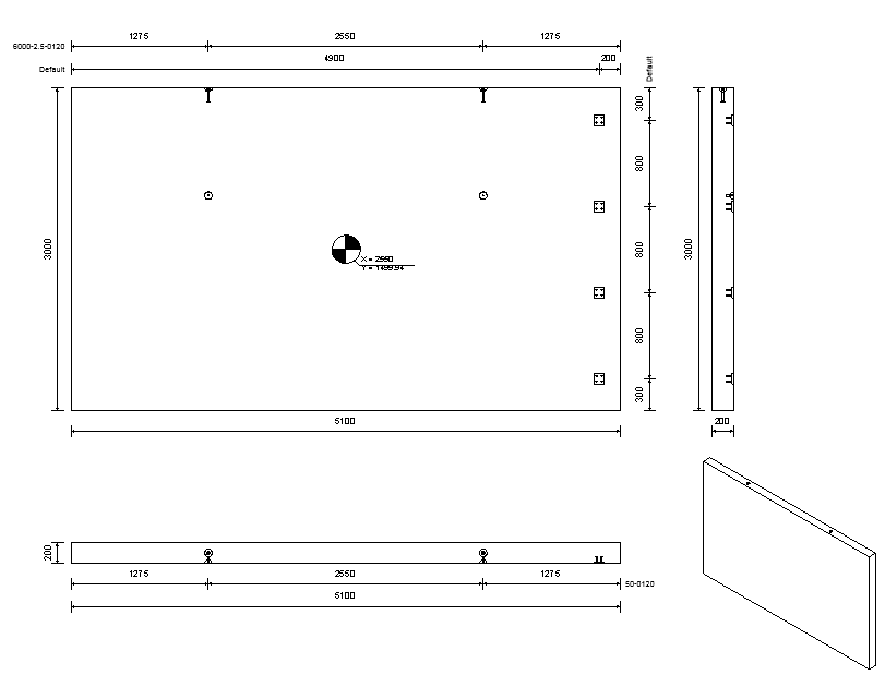
Die Bemaßungen aller Einbauteile der gleichen Familie werden auf einer Linie platziert, wenn sich die Einbauteile auf derselben Seite des Basisbauteils befinden. Die Referenz für diese Position befindet sich in der Mitte des Elements. Alle Einbauteile mit demselben Familiennamen oberhalb der Mitte des Basisbauteils werden oberhalb des Elements bemaßt. Die Einbauteile unterhalb der Mitte werden unterhalb des Elements bemaßt. Dieselbe Regel gilt für vertikale Bemaßungslinien. Bemaßungspunkte an den Grenzen des Basisbauteils werden der Bemaßungslinie neben den Maßpunkten der Einbauteile hinzugefügt (ein Punkt links und rechts oder oben und unten).



Gruppe Segmentierung
(Trennen), um die Wand zu trennen.
Gruppe Verbindungen
(Einbauteile), um die Ankerplatten der Baugruppe hinzuzufügen.
Gruppe Fertigung
(Fertigungspläne), um einen Fertigungsplan für die Baugruppe zu erstellen.

Basierend auf dem Namen der Unterkategorie sollten die Bemaßungslinien nur erstellt werden, wenn die Ankerplatten in der Draufsicht betrachtet werden (wie in der Familie). Für die Wand in diesem Beispiel gilt dies nur in der Vorderansicht.


Legen Sie eine Unterkategorie und den Sichtbarkeitsparameter wie im ersten Beispiel fest.
Gruppe Segmentierung
(Trennen), um die Wand zu trennen.
Gruppe Verbindungen
(Einbauteile), um die Ankerplatten der Baugruppe hinzuzufügen.
Gruppe Fertigung
(Fertigungspläne), um einen Fertigungsplan für die Baugruppe zu erstellen.

Gruppe Fertigung
(Fertigungspläne), um einen Fertigungsplan für die Baugruppe zu erstellen.

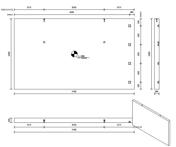
Die Grenzen der Ankerplatten werden in allen Ansichten bemaßt (mit einer Bemaßung, da es sich immer um die gleiche Familie handelt).
In der Drauf- und Vorderansicht wird nur die Platte bemaßt (ohne die Anker), da in diesen Ansichten nur die abgerundeten Flächen der Anker sichtbar sind und daher keine Referenzen zur Bemaßung angeben.


Gruppe Segmentierung
(Trennen), um die Wand zu trennen.
Gruppe Fertigung
(Fertigungspläne), um einen Fertigungsplan für die Baugruppe zu erstellen.
