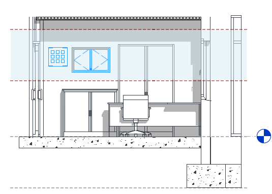
Der Ansichtsbereich besteht aus einer Reihe horizontaler Ebenen, die die Sichtbarkeit und Darstellung von Objekten in Draufsichten steuern.
Bei Draufsichten steht die Eigenschaft Ansichtsbereich (auch: sichtbarer Bereich) zur Verfügung. Die horizontalen Ebenen, die den Ansichtsbereich definieren, sind Oben, Schnittebene und Unten. Die obere und die untere Schnittebene stellen den obersten und untersten Teil des Ansichtsbereichs dar. Die Schnittebene legt fest, auf welcher Höhe bestimmte Elemente als Schnitte angezeigt werden sollen. Diese drei Ebenen bilden den primären Bereich des Ansichtsbereichs.
Video: Steuern des Ansichtsbereichs
Die Ansichtstiefe ist eine zusätzliche Ebene außerhalb des primären Bereichs. Indem Sie die Ansichtstiefe ändern, können Sie Elemente anzeigen, die unterhalb der unteren Schnittebene liegen. In der Vorgabeeinstellung fällt die Ansichtstiefe mit der unteren Schnittebene zusammen.
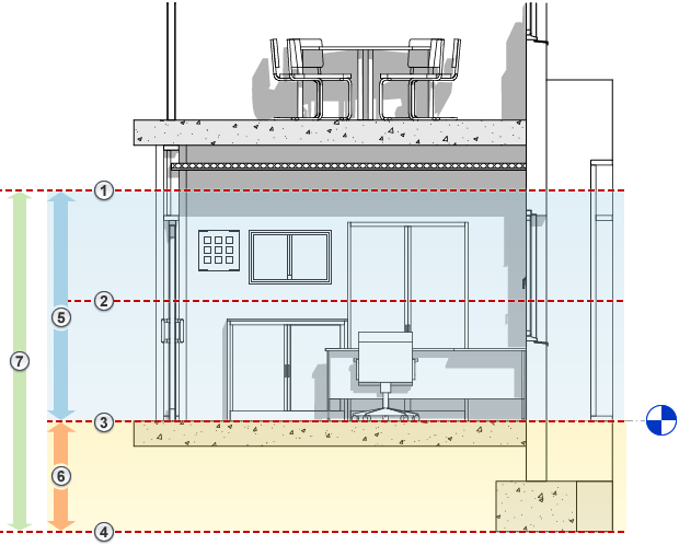
Die folgende Ansicht zeigt den Ansichtsbereich
einer Draufsicht: Oben
, Schnittebene
, Unten
, Versatz (von unten)
, Primärer Bereich
und Ansichtstiefe
.
Die Draufsicht auf der rechten Seite zeigt das Ergebnis für diesen Ansichtsbereich.
|
|
Revit LT zeigt Elemente, die von der Schnittebene geschnitten werden, gemäß den folgenden Regeln in Draufsichten an:
Zu den Ausnahmen für die Anzeige von Elementen, die von der Schnittebene geschnitten werden, gehören die folgenden:
Die 1.80 m werden von der Oberseite des Begrenzungsrahmens zur Unterseite des primären Ansichtsbereichs gemessen. Wenn Sie beispielsweise eine Wand erstellen, deren oberes Ende 1.80 m über der unteren Schnittebene liegt, wird die Wand an der Schnittebene geschnitten. Wenn die Oberseite der Wand weniger als 6 Fuß entfernt ist, wrid die gesamte Wand als Projektion angezeigt, und zwar auch an der Stelle, an der Sie die Schnittebene schneidet. Dieses Verhalten tritt immer dann auf, wenn die Eigenschaft Obere Abhängigkeit für die Wand auf Nicht verknüpft gesetzt ist. Wenn die Eigenschaft Obere Abhängigkeit für die Wand verbunden ist, wird die Position der Schnittebene zu definieren. in diesem Fall wird die Wand geschnitten oder projiziert wird.
In der folgenden Ansicht sind Elemente, die die Schnittebene schneiden, in Blau hervorgehoben.
Die Draufsicht rechts zeigt die folgenden Elemente:
Mit der Linienstärke für Schnittlinien gezeichnete Elemente (Wände, Türen und Fenster)
Elemente, die nicht geschnitten werden können (Schreinerarbeiten) und daher mit der Linienstärke für Projektionslinien gezeichnet wurden
|
|
Revit LT zeichnet diese Elemente in Draufsichten mit der in der Elementkategorie festgelegten Linienstärke für Projektionslinien.
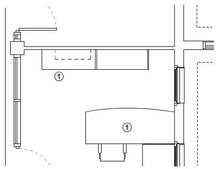
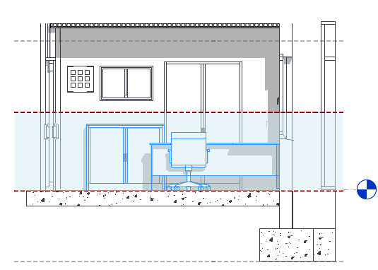
In der folgenden Ansicht sind Elemente, die unterhalb der Schnittebene, aber oberhalb der unteren Schnittebene liegen, blau hervorgehoben.
Die Draufsicht rechts zeigt die folgenden Elemente:
Elemente, die nicht von der Schnittebene geschnitten werden und daher mit der Linienstärke für Projektionslinien gezeichnet wurden (Schrank, Schreibtisch und Stuhl)
|
|
Elemente, die innerhalb der Ansichtstiefe liegen, werden unabhängig von der Kategorie des Elements mit dem Linienstil <Außerhalb des Bereichs> gezeichnet.
Ausnahmen: Für Geschossdecken, tragende Geschossdecken, Treppen und Rampen, die sich außerhalb des Ansichtsbereichs befinden, wird ein angepasster Bereich verwendet, der rund 1.22 m unterhalb der Unterseite des primären Bereichs liegt. Innerhalb dieses angepassten Bereichs werden Elemente mit der Linienstärke für Projektionslinien für die Kategorie gezeichnet. Befinden sich diese Elemente außerhalb des angepassten Bereichs, aber innerhalb der Ansichtstiefe, werden sie mit dem Linienstil <Außerhalb des Bereichs> gezeichnet.
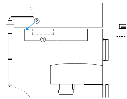
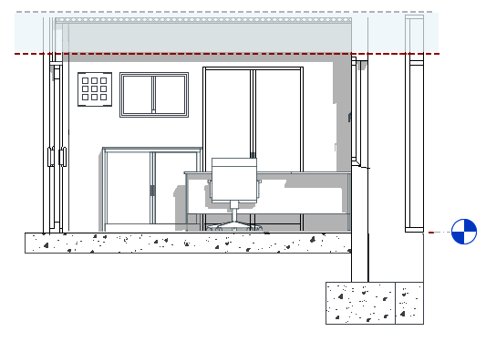
Beispiel: In der folgenden Ansicht sind Elemente, die sich unterhalb der unteren Schnittebene, aber innerhalb der Ansichtstiefe befinden, blau hervorgehoben.
Die Draufsicht rechts zeigt die folgenden Elemente:
Ein Element (Fundament), das sich innerhalb der Ansichtstiefe befindet und mit dem Linienstil <Außerhalb des Bereichs> gezeichnet wurde
Ein Element, das die Bedingungen für Ausnahmen erfüllt und daher mit der Linienstärke für Projektionslinien gezeichnet wurde
|
|
Diese Elemente werden in Draufsichten nur angezeigt, wenn sie zu einer der Kategorien Fenster, Schreinerarbeiten oder Allgemeines Modell gehören. Elemente in diesen drei Kategorien werden mit der Linienstärke für Projektionslinien und von oben gesehen gezeichnet.
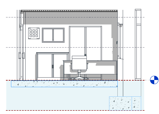
Beispiel: In der folgenden Ansicht sind Elemente, die sich zwischen der Oberseite des Ansichtsbereichs und der Schnittebene befinden, blau hervorgehoben.
Die Draufsicht rechts zeigt die folgenden Elemente:
Wandmontierte Schreinerarbeiten, die mit Linienstärke für Projektionslinien gezeichnet wurden. In diesem Fall ist der gestrichelte Linienstil für Projektionslinien in der Schreinerarbeitenfamilie definiert.
Die Wandleuchte (die zur Kategorie Beleuchtung gehört) wird in der Draufsicht nicht gezeichnet, da sie zu keiner der Kategorien Fenster, Schreinerarbeiten oder Allgemeines Modell gehört.
|
|
Bei Deckenplänen steht wie bei Draufsichten ein Ansichtsbereich zur Verfügung, wobei jedoch auch Unterschiede bestehen.
