Konfiguration 3: Deckenleuchte

Eine weitere häufige Beleuchtungskonfiguration ist die Befestigung an der Decke. Beispiele hierfür sind Kronleuchter, Schienenleuchten und Hängelampen.

Die Simulationskonfiguration für die Befestigung an der Decke basiert auf den Richtlinien des Prüfverfahrens UL1598 für die Befestigung an Oberflächen und Konfigurationen von eingelassenen Leuchten. Zur Simulation der natürlichen Konvektion und Temperaturverteilung muss die Decke von einem Luftvolumen umgeben sein. Zum Erstellen der Testbox gibt es, je nach Höhe der Detailtreue bei der physischen Prüfung, mehrere Möglichkeiten. Die Menge an Details im Wand-Testboxmodell legt fest, wie viel Wärme an die Wand geführt wird.

Für Deckenleuchten sind die drei Auswahloptionen eine adiabatische Decke, eine feste Testbox und eine UL-Testbox. Für eingelassene Leuchten gibt es zwei Optionen: eine feste Testbox und die UL-Testbox.

Geometrie der Deckenleuchte

Der Analysebereich sollte auf Basis der Konfiguration der Prüfvorrichtung konstruiert werden. Konstruieren Sie für jede Konfiguration ein Luftvolumen um die Leuchte, um die Luftbewegung aufgrund der natürlichen Konvektion und Wärmeübertragung zu simulieren.

Je nach gewünschter Detailtreue gibt es verschiedene Möglichkeiten, eine Deckenleuchte zu simulieren; die Ergebnisse sind experimentell:

Adiabatische Konfiguration: Decke

Unterdrücken Sie den Deckenbereich, damit dieser nicht vernetzt wird. Dadurch wird verhindert, dass die Wärme durch die Decke hindurch geleitet wird, wodurch eine adiabatische Befestigungsfläche für die Installation erstellt wird. Diese Herangehensweise simuliert den "schlimmsten Fall", in dem Wärme nur durch die natürliche Konvektion abgeführt wird. Verwenden Sie diese Konfiguration, um schnell Designoptionen für Vergleichsstudien zu simulieren.

Das Luftvolumen um die Wand und die Leuchte sollte folgende Bemaßungen haben:

Hartholzkonfiguration: Decke

Diese Konfiguration ermöglicht, dass die Wärme von der Leuchte abgeführt wird und an die umgebende Luft durch Konvektion abgegeben wird. Bei dieser Konfiguration wird keine physische Installation nachgebildet, sondern die unbekannte Kühlleistung der Wand entfernt und die UL-Wärmeprüfungsstrategie in einer Kammer mit kontrollierter Temperatur nachgeahmt.

Das Luftvolumen um die Wand und die Leuchte sollte folgende Bemaßungen haben:

UL-Test-Konfiguration: Decke

Die UL-Prüfungskonfiguration verwendet dieselben Bemaßungen wie die Hartholzkonfiguration, verwendet jedoch die UL-Testbox anstatt der Vollholzbasis. Verwenden Sie diese Prüfungskonfiguration, um einen physischen Test genau nachzuahmen.

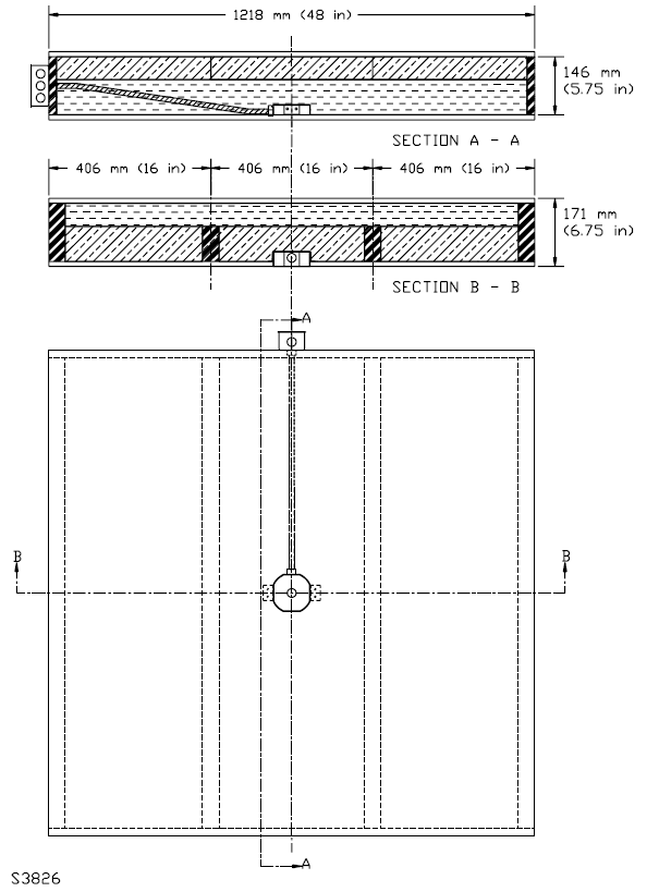
Konstruieren Sie die Wand-Prüfvorrichtung gemäß der Spezifikation UL 1598:

Vereinfachen Sie den achteckigen Anschlusskasten in CAD, um alle Blechdetails zu entfernen.

Schließen Sie die Prüfvorrichtung in ein Luftvolumen ein. Das Luftvolumen um die Prüfvorrichtung sollte folgende Bemaßungen haben:

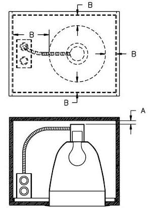
UL Testkonfiguration: Eingelassene Decke

Die empfohlene Vorgehensweise zum Simulieren einer eingelassenen Deckenleuchte ist die UL-Testkonfiguration für eine eingelassene Decke. Die UL-Testbox verwendet diese Testkonfiguration für eine möglichst genaue Nachahmung eines physischen Tests.

Erstellen Sie ein CAD-Modell der Testinstallation auf der Grundlage der in der Spezifikation UL 1598 aufgeführten Richtlinien. Verwenden Sie abwechselnd einen halben Zoll Sperrholz und einen halben Zoll Abstand (Bemaßungen A und B unten). Die obere Zeichnung zeigt die Ansicht von oben. Die untere Zeichnung zeigt eine Seitenansicht:

Vereinfachen Sie die Blechteile der Leuchte, indem Sie kleine Radien, geformte Elemente und Eckenspalten entfernen, da diese die Netzgröße und die Lösungszeit erhöhen, ohne die Strömung und die thermische Lösung zu verbessern.

Erstellen Sie ein Luftvolumen um die Installation, um durch natürliche Konvektion und Wärmeübertragung verursachte Luftbewegungen zu simulieren.

Randbedingungen

Einheit 1 |Wandbefestigung |Stangenbefestigung