LiveView Exercise: Merging Vectors

In this exercise, you update a drawing and merge new vector data with existing raster data.

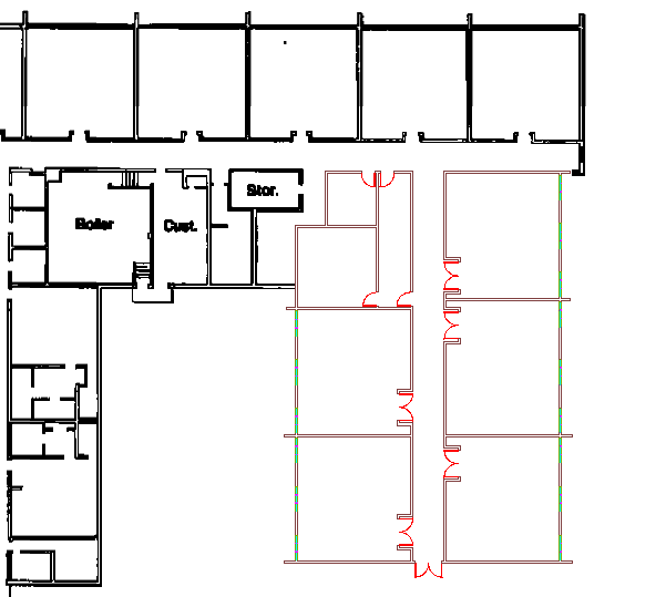
To merge vectors into raster data
1

Open the file C:\Program Files\Autodesk\AutoCAD Raster Design 2019\Getting Started Guide\LiveView_Merge.dwg.

You see a drawing of a school. The white raster data indicates the original building, and the colored vector data indicates the additional classrooms.

2 Click Raster menuMergeConfigure Raster Pens to open the Raster Pen Settings dialog box.
3

Select the Red pen color, set its pen width to 1 pixel, then click OK.

With this setting, the doors will be drawn in thinner raster lines than the walls.

4

Click Raster menuMergeVector Into Raster. Select the vector block of new classrooms by drawing a window around it, then right-click to end the selection. Press Enter to accept the default setting of deleting the vectors after the merge.

The vector data is merged with the raster data.