In this exercise, you clean up a drawing by removing speckles.
| To remove speckles from an image | ||
|---|---|---|
| 1 |
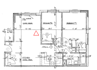
Open the file C:\Program Files\Autodesk\2019\Getting Started\ LiveView_Clean.dwg This drawing includes a red vector triangle around one of the largest speckles in the image. |
![]() |
| 2 | Zoom your display in to clearly see the speckle inside the red triangle. |
![]() |
| 3 | Click
Raster menu Cleanup Despeckle.
Press Enter to process the entire image. |
![]() |
| 4 | Click the speckle inside the red triangle.
The system reports the size of the speckle (0.025 drawing units or 5 pixels), and highlights all speckles smaller than this size as candidates for removal. |
![]() |
| 5 | Pan and zoom around the image to review the speckles. Click to deselect any speckles that you do not want removed, such as the period in A.C. SLEEVE in the upper left.
Press Enter to remove the highlighted speckles. |
![]() |
| 6 | In the upper left, note several speckles that were not removed because they are larger than the one you picked inside the red triangle. You can manually delete these. |
![]() |