Set the data source, BOM settings, and table wrap settings when you create a parts list.
![]() |
|
Access: |
Ribbon:
Annotate tab
Table panel
Parts List
|
|
Selects the source for the parts list. |
|
|
Select View |
Selects a drawing view to identify a target for parts list. |
|
File |
Selects a file to be used as the parts list source. Select a file from the list, or click Browse to locate the file. |
|
BOM View settings determine available settings and properties. Note: Structured Properties are only available if the BOM view has not been defined in the assembly Bill of Materials.
|
||
|
Structured |
First Level assigns a simple integer value to direct children. |
Minimum Digits provides control to set the minimum number of digits displayed for item numbering. The range is fixed from 1 to 6 digits |
|
All Levels provides full expanded numbering. This option provides a delimiter that works in conjunction with expanded items. Child items receive indented concatenated numbering. |
Delimiter Sets a delimiter for structured item numbering. This option restarts numbering for each level. |
|
|
Parts Only |
Numbering: Numeric numeric text. |
Minimum Digits provides control to set the minimum number of digits displayed for item numbering. The range is fixed from 1 to 6 digits. |
|
Alpha provides full expanded numbering. This option provides a delimiter that works in conjunction with expanded items. Child items receive indented concatenated numbering based on the same rules as in parts lists today. |
Case Select upper or lower |
|
|
Structured (legacy) |
Inheritance Determines if nested levels in a parts list inherit changes made to the item value of the parent assembly (for example, if the assembly item value changes from 1 to A, the nested parts change from 1.1, 1.2, to A.1, A.2). |
Delimiter Sets a delimiter for structured item numbering. |
|
Parts only (legacy) |
View properties are not applicable for Parts only (legacy) |
|
|
Select Member |
Specifies if the parts list is created for specific iAssembly members or for the whole iAssembly. Select the check box to create a parts list for members only or clear the check box to create a parts list for the entire iAssembly. |
|
|
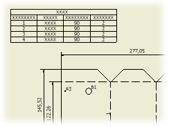
Manages the appearance of a parts list in the drawing. |
|
|
Direction to Wrap Table |
Places the columns to the left or right when you increase the number of rows in the parts list. |
|
Left: Wraps the parts list rows to the left. |
|
|
Right: Wraps the parts list rows to the right. |
|
|
Enable Automatic Wrap |
Enables controls for automatic wrapping. |
|
Maximum Rows |
Specifies the number of rows to display in one section. Type the appropriate number. |
|
Number of Sections |
Specifies the number of sections to wrap. Type the appropriate number. |
For related information, see To Split a Table