Description: Defines the properties of a simple beam element (CBAR entry) by cross-sectional dimensions.
Format:
Example:
| Field | Definition | Type | Default |
|---|---|---|---|
| PID | Property identification number. | Integer > 0 | Required |
| MID | Material identification number. See Remark 2. | Integer > 0 | Required |
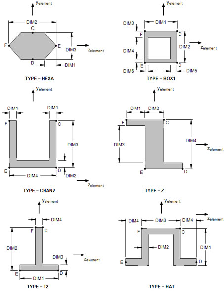
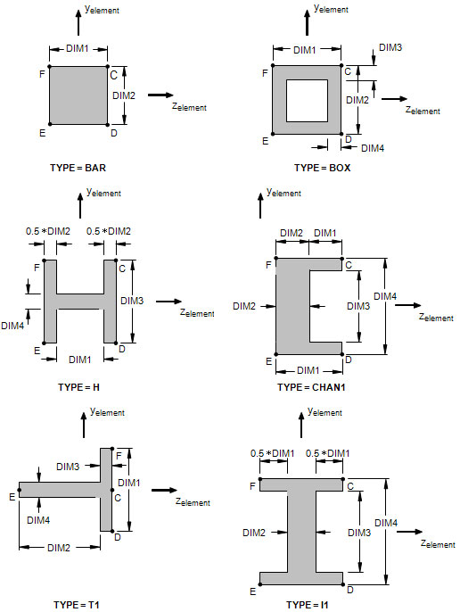
| TYPE | Cross-section type. Must be one of following character variables: BAR, BOX, BOX1, CHAN, CHAN1, CHAN2, CROSS, H, HAT, HEXA, I, I1, ROD, T, T1, T2, TUBE, or Z. See Remark 4. | Character | Required |
| F0 | Preload. | Real or blank | 0.0 |
| DIMi | Cross-sectional dimensions. | Real > 0.0 | Required |
| NSM | Nonstructural mass per unit length. | Real or blank | 0.0 |
Remarks:
Figure 1a. Definition of Cross-Section Geometry and Stress Recovery Points
Figure 1b. Definition of Cross-Section Geometry and Stress Recovery Points
Figure 1c. Definition of Cross-Section Geometry and Stress Recovery Points
Figure 1d. Definition of Cross-Section Geometry and Stress Recovery Points