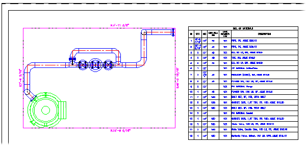
Creates an Ortho BOM table.
Ribbon:
Ortho View tab
Table Setup
Command entry:
plantorthoplacebom The following prompts are displayed.
Select a viewport: Select an ortho viewport.
Specify first corner: Specify upper left of Ortho BOM table.
Specify second corner: Specify table width. The height specified is ignored.
