Review different workflow examples of dimensioning mounting parts in precast shop drawing views.
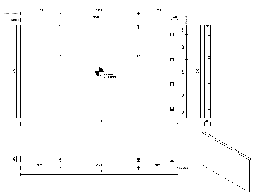
The dimensions of all mounting parts of the same family will be placed on one line, if the mounting parts are placed on the same side of the host. The reference for this placement is the center of the element. All mounting parts with the same family name that are on top of the center of the host will be dimensioned on top of the element. The mounting parts below the center will be dimensioned below the element. The same rule applies for vertical dimension lines. Dimension points on the extents of the host are added to the dimension line, besides the dimension points of the mounting parts (one point left & right or top & bottom).



Segmentation panel
(Split) to split the wall.
Connections panel
(Mounting Parts) to add the anchor plates into the assembly.
Fabrication panel
(Shop Drawings) to create a shop drawing for the assembly.

Based on the name of the subcategory, the dimension lines should be created only when viewing the anchor plates from the top (as seen in the family). For the wall in this example that is only in the frontal view.


Set a subcategory and the visibility parameter as in the first example.
Segmentation panel
(Split) to split the wall.
Connections panel
(Mounting Parts) to add the anchor plates into the assembly.
Fabrication panel
(Shop Drawings) to create a shop drawing for the assembly.

Fabrication panel
(Shop Drawings) to create a shop drawing for the assembly.

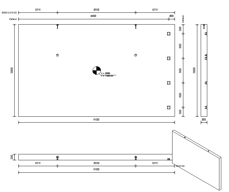
The extents of the anchor plates are dimensioned in all views (using one dimension, since it is always the same family).
In top and front views, only the plate is dimensioned (without the anchors), because in these views only the round faces of the anchors are visible, thus giving no references to dimension.


Segmentation panel
(Split) to split the wall.
Fabrication panel
(Shop Drawings) to create a shop drawing for the assembly.
