A detail view is a view of the model that appears as a callout or section in other views. This type of view typically represents the model at finer scales of detail than in the parent view.
A detail view can be created as a section or a callout. When created as a callout, the detail can have both section and callout annotations assigned to it. That is, a detail view made as a callout can also show up as a section in views that intersect the callout view extents. For example, you may use a callout to create a detail view of a wall intersection. This same callout can appear as a section view in the overall building section view.
Visibility of a detail view tag depends on the scale of the parent view and whether the crop boundary of the detail view intersects or is entirely within that of the parent view. The detail view parameter Hide at Scales Coarser Than establishes a scale at which details are either shown or hidden in other views. For example, if a detail tag is set to hide at scales coarser than 1/4”=1’0”, then a view with a scale set to 1/8" = 1'-0" would not show the detail tag.
All detail views, regardless of whether you draw them as a callout or section, show up in the Project Browser as a detail view.
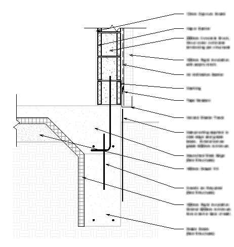
The following image shows a sample of a Wall Section Detail with model geometry as the underlay (in halftone) and additional 2D detail components drawn over the model elements.
