Cree conectores de forma dinámica mediante la definición de los parámetros de conectores, como el número de polos, sus espaciados y valores.
La herramienta Insertar conector genera un símbolo de conector a partir de parámetros definidos por el usuario. El símbolo se crea inmediatamente y se inserta como una inserción de bloque en el archivo de dibujo activo. Dado que éstos se crean a medida que se necesitan, se evita la necesidad de crear y mantener una biblioteca de símbolos de conector.
Modificación de las propiedades del dibujo


. Buscar
Componentes, seleccione Secuencial.
Números de cable, seleccione En la línea.
Adición de conectores al dibujo


. Buscar
Espaciado de polos: 1.0
Número de polos: 15
Espaciado fijo
Lista de polos: 1
Insertar todo

La vista preliminar será similar a la siguiente imagen.

Se muestra un contorno de vista preliminar del conector de la inserción en el dibujo. Muestra esquinas redondeadas en el lado de la clavija del conector. Una "x" indica el punto de inserción del conector. Una flecha indica la dirección de conexión de cables del lado de clavija para las inserciones de conector de solo clavija o clavija/base, o bien muestra la dirección de conexión de cables para una inserción de conector de solo base.
Especifique el punto de inserción o [Z=zoom, E=encuadre, X=intersección de cables, V=horizontal/vertical, TAB=cambiar]:
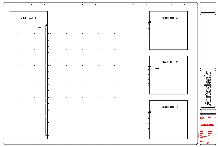
Seleccione colocar el conector en el centro del límite derecho de la Caja negra 1

Al conector se le ha asignado automáticamente la etiqueta de componente PJ1.


. Buscar
Espaciado de polos: 0.75
Número de polos: 4
Espaciado fijo
Lista de polos: A
Insertar todo
La vista preliminar será similar a la siguiente imagen.

Especifique el punto de inserción o [Z=zoom, E=encuadre, X=intersección de cables, V=horizontal/vertical, TAB=cambiar]:
Seleccione ubicar el conector en el centro del límite izquierdo de la Caja negra 2

Al conector se le ha asignado automáticamente la etiqueta de componente PJ2.
A los conectores se les asigna las etiquetas PJ3 y PJ4, respectivamente.
