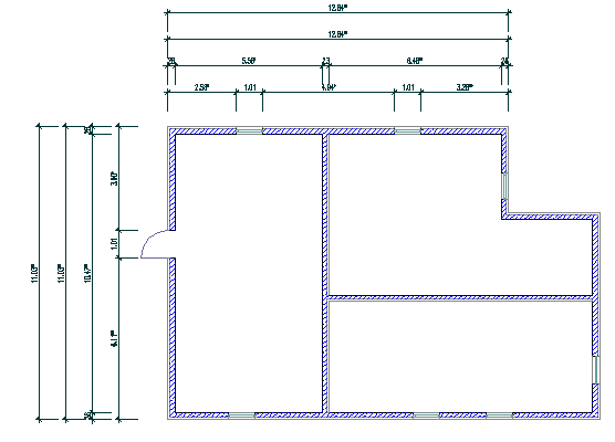
Les cotes AEC associatives sont des objets d'annotation basés sur le style qui sont mis à jour automatiquement lorsque les objets associés sont modifiés. Le style de cote AEC définit les points de cote qui déterminent quelles mesures afficher pour chaque objet pouvant être coté avec le style.
Dans l'exemple ci-dessous, les longueurs de mur, les largeurs d'ouverture et les intersections de mur sont définies en tant que points cotés dans le style. Si une porte est élargie, les cotes sont mises à jour pour prendre en compte les nouvelles mesures.

Vous pouvez définir des styles pour des types d'objets spécifiques. Par exemple, un style de cote AEC peut spécifier que, pour les murs, les cotes sont affichées pour les longueurs, les largeurs d'ouverture maximale des fenêtres dans les murs et les intersections de mur. Un autre style de cote AEC pour les masses élémentaires permet de spécifier les bords et le centre des masses élémentaires en tant que points de cote.
Vous pouvez également définir plusieurs points de cote pour différentes vues. Par exemple, en plan non détaillé, vous pouvez coter uniquement les limites extérieures d'un édifice, tandis qu'en plan détaillé, vous pouvez coter les longueurs de mur ainsi que les ouvertures.
Dans le style de cote AEC, il est possible de définir jusqu'à 10 lignes de cotes et des points de cote différents pour chacune d'entre elles. Par exemple, la première ligne cote les longueurs de mur et les ouvertures dans les murs, tandis que la deuxième ligne cote les composants de structure des murs à composants multiples.
Dans le style de cote AEC, vous pouvez choisir d'utiliser la mise en exposant dans les cotes et une longueur de ligne d'attache fixe ou variable.