Dans cet exercice, vous allez nettoyer un dessin en y supprimant les taches.
| Pour supprimer les taches d'une image | ||
|---|---|---|
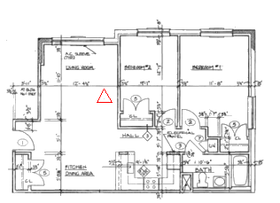
| 1 |
Ouvrez le fichier C:\Program Files\Autodesk\2019\Getting Started Guide\LiveView_Clean.dwg. Ce dessin affiche un triangle vectoriel rouge autour de l'une des taches les plus grandes dans l'image. |
![]() |
| 2 | Effectuez un zoom avant pour voir clairement la tache à l'intérieur du triangle rouge. |
![]() |
| 3 | Cliquez sur le menu Raster Nettoyer Supprimer les taches.
Appuyez sur la touche ENTREE pour traiter l'ensemble de l'image. |
![]() |
| 4 | Cliquez sur la tache à l'intérieur du triangle rouge.
Le système indique la taille de la tache en unités de dessin (0.025) ou en pixels (5) et met en surbrillance toutes les taches dont la taille est égale ou inférieure à la taille indiquée, qui sont donc susceptibles d'être supprimées. |
![]() |
| 5 | Effectuez un panoramique et un zoom avant autour de l'image pour passer les taches en revue. Cliquez afin de désélectionner les taches que vous ne souhaitez pas supprimer, par exemple le point dans le texte A.C. SLEEVE, dans l'angle supérieur gauche.
Appuyez sur la touche ENTREE pour supprimer les taches en surbrillance. |
![]() |
| 6 | Dans l'angle supérieur gauche, plusieurs taches n'ont pas été supprimées, car elles sont plus grandes que la tache que vous avez sélectionnée dans le triangle rouge. Vous pouvez supprimer ces taches manuellement. |
![]() |