Esercizio pratico: unione di vettori

In questo esercizio si aggiornerà un disegno e si uniranno nuovi dati vettoriali a dati raster già esistenti.

Per unire vettori a dati raster
1

Aprire il file C:\Programmi\Autodesk\AutoCAD Raster Design 2019\Getting Started Guide\LiveView_Merge.dwg.

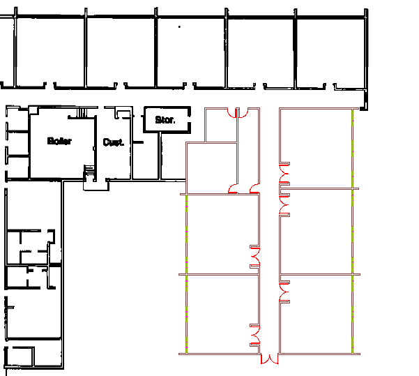
Viene visualizzato il disegno di una scuola. I dati raster bianchi indicano l'edificio originario, mentre i dati vettoriali a colori indicano le aule che verranno aggiunte.

2 Fare clic sul menu RasterUnisciConfigura penne raster per accedere alla finestra di dialogo Impostazioni della penna raster.
3

Selezionare la penna di colore rosso e impostarne lo spessore su 1 pixel, quindi fare clic su OK.

Con questa impostazione le porte verranno disegnate con linee raster più sottili rispetto a quelle delle pareti.

4

Fare clic sul menu RasterUnisciVettore in raster. Selezionare il blocco vettoriale delle nuove aule mediante un riquadro, quindi fare clic con il pulsante destro del mouse per concludere la selezione. Premere INVIO per accettare le impostazioni di default ed eliminare i vettori dopo l'unione.

I dati vettoriali vengono uniti ai dati raster.