L'intervallo di visualizzazione è costituito da un insieme di piani orizzontali che consentono di controllare la visibilità e la visualizzazione degli oggetti in una vista di pianta.
Tutte le viste di pianta includono una proprietà denominata Intervallo di visualizzazione, nota anche come intervallo visibile. I piani orizzontali che definiscono l'intervallo di visualizzazione sono Parte superiore, Piano di taglio e Parte inferiore. I piani di ritaglio Parte superiore e Parte inferiore rappresentano rispettivamente la parte più alta e la parte più bassa dell'intervallo di visualizzazione. Il piano di taglio determina a quale altezza viene tagliata la vista di determinati elementi. Questi tre piani definiscono l'intervallo primario dell'intervallo di visualizzazione.
Video: controllo dell'intervallo di visualizzazione
La profondità della vista è un piano aggiuntivo al di fuori dell'intervallo primario. È possibile modificare la profondità della vista in modo da visualizzare gli elementi situati al di sotto del piano di ritaglio inferiore. Per default, la profondità della vista coincide con il piano di ritaglio inferiore.
Il prospetto che segue mostra l'intervallo di visualizzazione
di una vista di pianta: Parte superiore
, Piano di taglio
, Parte inferiore
, Offset (dal piano inferiore)
, Intervallo primario
e Profondità della vista
.
La vista di pianta a destra mostra il risultato per l'intervallo di visualizzazione corrente.
|
|
In una vista di pianta di Revit LT gli elementi intersecati dal piano di taglio vengono visualizzati in base alle seguenti regole:
Le eccezioni per la visualizzazione di elementi intersecati dal piano di taglio sono le seguenti:
I 6 piedi (o 2 metri) vengono misurati dalla parte superiore del riquadro di delimitazione alla parte inferiore dell'intervallo di visualizzazione primario. Se ad esempio si crea un muro la cui parte superiore si trova 6 piedi al di sopra del piano di taglio inferiore, il muro viene tagliato in corrispondenza del piano di taglio. Quando la parte superiore del muro è inferiore a 6 piedi, l'intero muro viene visualizzato in proiezione anche nel punto di intersezione con il piano di taglio. Ciò si verifica sempre quando viene specificato il valore Non collegata per la proprietà Vincolo parte superiore del muro. Se la proprietà del vincolo superiore del muro viene specificata come Collegati, la posizione del piano di taglio viene sempre utilizzata per definire se il muro viene tagliato o proiettato.
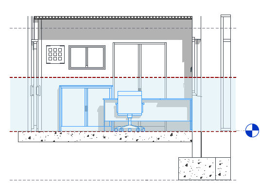
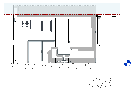
Nella seguente vista di prospetto, l'evidenziazione in azzurro indica gli elementi che intersecano il piano di taglio.
La vista di pianta a destra mostra quanto segue:
Elementi disegnati con lo spessore di linea di taglio (muri, porta e finestra).
Elementi disegnati con lo spessore di linea di proiezione in quanto non tagliabili (arredi fissi).
|
|
In una vista di pianta di Revit LT questi elementi vengono disegnati utilizzando lo spessore di linea di proiezione della categoria di elementi.
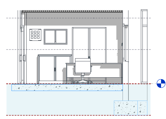
Nella seguente vista di prospetto, l'evidenziazione in azzurro indica gli elementi che si trovano sotto il piano di taglio e sopra il piano di ritaglio inferiore.
La vista di pianta a destra mostra quanto segue:
Elementi disegnati utilizzando lo spessore di linea di proiezione in quanto non vengono intersecati dal piano di taglio (armadio, scrivania e sedia).
|
|
Gli elementi inclusi nella profondità della vista vengono disegnati utilizzando lo stile di linea <Oltre>, indipendentemente dalla categoria dell'elemento.
Eccezioni: per i pavimenti, i pavimenti strutturali, le scale e le rampe che non rientrano nell'intervallo di visualizzazione viene utilizzato un intervallo modificato posto 4 piedi (circa 1,22 metri) sotto la parte inferiore dell'intervallo primario. In tale intervallo modificato gli elementi vengono disegnati utilizzando lo spessore di linea di proiezione per la categoria. Se si trovano al di fuori dell'intervallo modificato ma all'interno della profondità della vista, tali elementi vengono disegnati con lo stile di linea <Oltre>.
Ad esempio, nel seguente prospetto, l'evidenziazione in azzurro indica gli elementi posti al di sotto del piano di ritaglio inferiore e all'interno della profondità della vista.
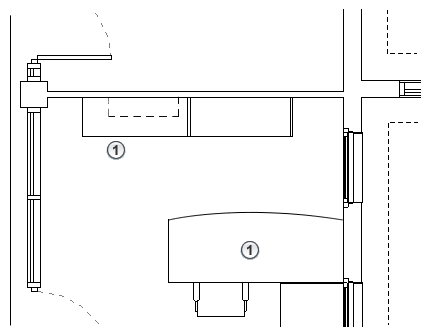
La vista di pianta a destra mostra quanto segue:
Un elemento (fondazione) incluso nella profondità della vista e disegnato con lo stile di linea <Oltre>.
Un elemento disegnato con lo spessore di linea di proiezione per la categoria di appartenenza, in quanto soddisfa le condizioni dell'eccezione.
|
|
Questi elementi non vengono visualizzati in una vista di pianta, a meno che la categoria di appartenenza non sia finestra, arredi fissi o modello generico. Gli elementi di queste tre categorie vengono disegnati con lo spessore di linea di proiezione e visualizzati dall'alto.
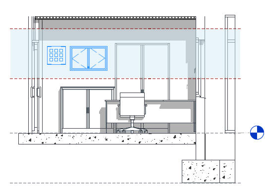
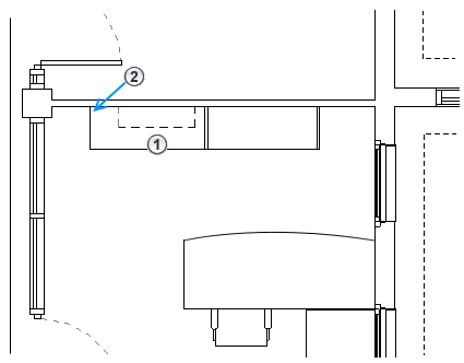
Ad esempio, nel seguente prospetto, l'evidenziazione in azzurro indica gli elementi che si trovano tra la parte superiore dell'intervallo di visualizzazione e il piano di taglio.
La vista di pianta a destra mostra quanto segue:
Arredi fissi a muro disegnati con lo spessore di linea di proiezione. In questo caso, lo stile di linea tratteggiato per le linee di proiezione è definito nella famiglia degli arredi fissi.
Applique (categoria di illuminazione) che non viene disegnata nella pianta, perché la categoria di appartenenza non è finestra, arredi fissi o modello generico.
|
|
Come viste di pianta, le piante del controsoffitto dispongono inoltre di un'impostazione di Intervallo di visualizzazione, ma con alcune differenze.
