2D 断面図包絡処理からマテリアル定義を除外するには

特定のマテリアル定義が割り当てられているコンポーネントを 2D 断面の包絡処理から除外するには、この手順を使用します。

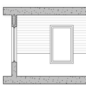
2D 断面図を作成すると、包絡処理という名前の断面コンポーネントを表示することができます。 包絡処理は、断面線分で切断され、1 つのハッチング パターンを表示する 1 つのコンポーネントに結合された、オブジェクトのすべての面の結合体です。 このビューは、2D 断面図で頻繁に使用されます。

既定では、マテリアル定義が割り当てられているすべてのコンポーネントが包絡処理に含まれます。ただし、ガラスなどの一定のマテリアル定義を包絡処理から除外することもできます。

ガラスを除外した状態の 2D 断面の包絡処理(左)

  1. [管理]タブ[スタイルと表示]パネル[スタイル マネージャ]をクリックします.

    スタイル マネージャが表示され、ツリー ビューに現在の図面が展開されて表示されます。

  2. [多目的オブジェクト]、[マテリアル定義]の順に展開します。
  3. 変更したい[マテリアル定義]を選択します。
  4. [表示プロパティ]タブをクリックします。
  5. 変更内容を表示する表示レベルを選択し、[スタイルの優先]を選択します。

    太字の表示レベルが、現在の表示レベルです。

  6. 必要な場合は をクリックします。
  7. [その他]タブをクリックします。
  8. [2D 断面図包絡処理から除外]を選択します。
  9. [OK]をクリックします。