ブロック エディタでは、パラメータ、アクション、およびそれらの関係(依存関係)はさまざまに表示されます。これらの要素の中には、設定を指定できるものもあります。
ブロック エディタでは、アクションは、アクション名とアイコン(稲妻)で表示されます。アクションは、アクション バーにグループ化されます。このバーには、パラメータに関連付けられたすべてのアクションが表示されます。
アイコンにカーソルを合わせると、次のものが表示されます。
カスタム ブロック オーサリング ツールを作成できます。このツールには、ブロック オーサリング パレットからアクセスします。ブロック オーサリング パレット上に既定のツールを保持するには、カスタム ブロック オーサリング ツールの新しいパレットを作成します。既存のいずれかのパレットからパラメータ セット ツールをコピーして、新しいパレットに貼り付けることができます。
ブロック エディタで、パラメータ、グリップ、アクションを選択すると、それらに関連付けられているオブジェクトがハイライト表示されます。これを、 「依存関係のハイライト表示」といいます。依存関係のハイライト表示のオン/オフを切り替えることができます。
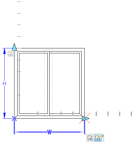
次の例は、ブロック エディタでカスタム グリップを選択したときに、依存関係のハイライト表示により、関連付けられている(「距離」というラベルが付いた)パラメータと(「ストレッチ」というラベルが付いた)アクションがハイライト表示された状態を示しています。
次の表に、ブロック エディタで要素を選択したときにハイライト表示される要素を示します。
選択されたオブジェクト |
依存関係のハイライト表示が行なわれるオブジェクト |
---|---|
パラメータ |
関連付けられているグリップとアクション |
グリップ |
関連付けられているパラメータとアクション |
アクション |
関連付けられているパラメータ、グリップ、選択セット(ジオメトリ) |