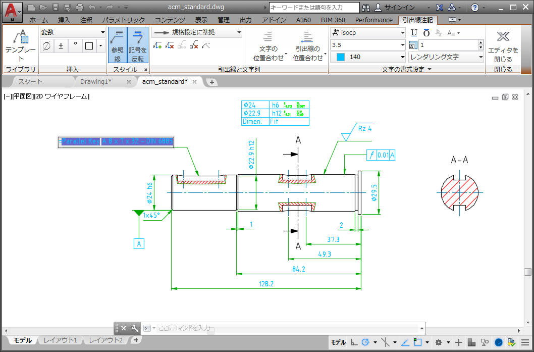
概要 - 引出線注記の機能強化(AutoCAD Mechanical Toolset)

AMNOTE[引出線注記]コマンドが機能拡張され、[注記記号]ダイアログ ボックスの代わりにコンテキスト リボンが表示されるようになりました。

引出線の頂点を選択すると、すぐにコンテキスト リボン タブが表示されます。インプレイス エディタでは、MTEXT[マルチテキスト]コマンドを使用して文字を指定する場合と同様に注記文字を指定できます。[注記]ダイアログ ボックスで使用できた機能はすべて、新しいコンテキスト タブで使用できます。引き続き[注記]ダイアログ ボックスを使用する場合は、AMNOTETAB システム変数を 0 に設定することでコンテキスト タブをオフにすることができます。