この練習では、斑点を除去して図面をクリーンアップします。
| イメージから斑点を除去するには | ||
|---|---|---|
| 1 |
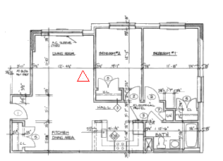
次のファイルを開きます。C:¥Program Files¥Autodesk¥2019¥Getting Started¥ LiveView_Clean.dwg この図面には、イメージ内で一番大きな斑点の 1 つを囲んでいる赤いベクトル三角形が含まれています。 |
![]() |
| 2 | 赤い三角形内の斑点がはっきり見えるように、表示を拡大ズームします。 |
![]() |
| 3 | [ラスター]メニュー [補正] [斑点除去]を選択します。
[Enter]を押して、イメージ全体を処理します。 |
![]() |
| 4 | 赤い三角形の内側にある斑点をクリックします。
斑点のサイズ(0.025 図面単位または 5 ピクセル)が表示され、削除候補として、このサイズより小さいすべての斑点がハイライト表示されます。 |
![]() |
| 5 | 画面をイメージの回りに移動して拡大し、斑点を調べます。左上にある「A.C. SLEEVE」のピリオドなど、除去したくない点をクリックして選択解除します。
[Enter]を押して、ハイライト表示した斑点を除去します。 |
![]() |
| 6 | 左上に、除去されなかった斑点がいくつかあることに注意してください。これは、赤い三角形内で選択した斑点より大きいためです。これらの斑点は手動で除去することができます。 |
![]() |