
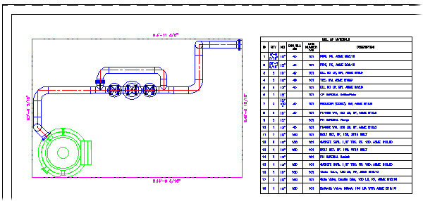
オルソ図面に部品表を挿入することができます。

部品表には、オルソ ビューに存在する項目が一覧表示されます。
[テーブル セットアップ]を使用して、グループ化とプロパティ(列)を指定することができます。カッティング リストを含めるかどうかを指定することもできます。
新しい部品表の設定を含むオルソ図の設定は、Orthos¥Styles フォルダに保存されます。スタイル フォルダをコピーすることによって、スタイルを他のプロジェクトと共有することができます。
オルソ部品表セットアップは、表の列とグループ化に関して、アイソメ部品表に似ています。アイソメ部品表と同様に、テーブル セットアップをタイトル ブロックと一緒に保存することができます。
アイソメ部品表とは異なり、作図領域および表領域はサポートされていません。

管理者は、プロジェクトの既定の部品表を設定することができます。
プロジェクト セットアップでは、オルソ図のタイトル ブロック内の部品表をセットアップすることができます。タイトル ブロックに部品表テンプレート(空の表)を配置する場合、新しいオルソ図面によって位置やサイズに対するプロンプトは表示されません。

AutoCAD Plant 3D 2015 から、オルソ ビューの部品表テーブルを作成できるようになりました。配管と配管サポートが、オルソ部品表に一覧表示されます。