別の CAD プログラムから製図ビューを読み込む
別の CAD プログラムからビューを読み込み、
Revit
製図ビューとして使用することができます。次に、吹き出しまたは断面詳細の製図ビューを参照し、設計図書セットのシートに配置することができます。
[表示]タブ
[作成]パネル
(製図ビュー)をクリックします。
新しい製図ビューの名前と適切なスケールを入力します。
[挿入]タブ
[読み込み]パネル
(CAD を読み込む)をクリックします。
詳細と CAD 形式を選択します。
詳細ビューの場合は、[現在のビューのみ]オプションを選択します。
注:
製図ビューの場合は、自動的に選択されます。
[開く]をクリックして、CAD の詳細を配置します。
必要に応じて、このビューをシートにドラッグ アンド ドロップします。
必要に応じて、吹き出しまたは断面詳細を配置するときに、このビューを参照します。
読み込んだ製図ビューの建築例
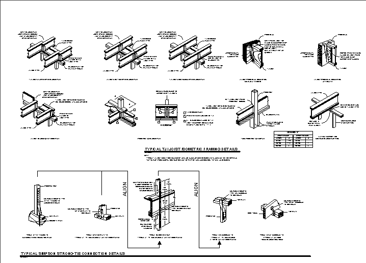
読み込んだ製図ビューの構造例
親トピック:
製図ビュー
関連概念
製図ビューについて
詳細ライブラリについて
関連タスク
参照吹き出しを作成する
参照断面を作成する
シートにビューを追加する