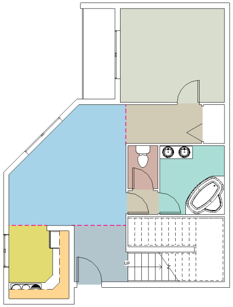
룸 구분 선 도구를 사용하여 룸 경계를 추가 및 조정합니다.
룸구분 선이 룸 경계입니다. 룸구분 선은 룸 사이의 벽이 필요하지 않은 거실 내의 식당과 같이 한 룸 안에 다른 룸을 지정할 때 유용합니다. 룸 구분 선은 평면 뷰 및 3D 뷰에 표시됩니다.
벽으로 둘러싸인 룸을 작성하는 경우 룸 면적은 기본적으로 벽의 내부 면에서 계산됩니다. 이러한 벽에 개구부를 추가하면서 별도의 룸 면적 계산을 유지하려면, 개구부를 통과하는 룸 구분 선을 스케치해야 룸 면적을 처음 계산된 대로 유지할 수 있습니다.
