이 방법은 복합 면적의 체적이 베이스 레벨에서 상위 레벨까지 구속된 복합 면적에 공간을 배치합니다.
여러 레벨에 걸치는 영역과 같은 영역, 캔틸레버된 상위 레벨이 있는 영역 또는 영역의 일부에 대한 상한으로 로프트를 가지는 영역과 같은 영역 공간을 배치할 때 이 방법을 사용할 수 있습니다. 이러한 상황에서 공간 구분 선 또는 추가 레벨을 사용하여 해당 영역을 분할할 수 있습니다.
프로젝트 탐색기에서 여러 레벨에 걸치는 영역의 베이스 레벨이 포함된 평면을 두 번 클릭합니다.
다음으로, 구획도를 작성하여 공간 배치 시 수직으로 공간을 확인합니다.
팁: 공간은 입면도에 표시되지 않습니다.
구획도 작성
기존 구획도를 사용할 수 있지만, 구획 선은 공간이 배치될 영역을 교차해야 합니다.
- 뷰 탭
작성 패널
(구획도)를 클릭합니다.
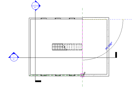
- 평면도에서 그림과 같이 평면을 교차하는 2개의 수직 구획을 그립니다.
구획 선은 공간을 배치할 영역을 교차해야 합니다. 그렇지 않은 경우 공간이 구획도에 표시되지 않습니다.
- 프로젝트 탐색기에서 새 구획도를 두 번 클릭하여 엽니다.
레벨 작성
이 항목에서는 표준 레벨이 설계에 존재하므로 작성할 필요가 없다고 가정합니다. 레벨이 없으면 레벨을 작성해야 합니다.
- 수정을 클릭합니다.
공간 구분 선을 사용하여 영역 분할
- 평면에서 클릭하여 평면을 활성 뷰로 만듭니다.
- 해석 탭
공간 및 구역 패널
(공간 구분 기호) 아이콘을 클릭하고 공간 구분 기호를 그려 다른 상한값에 따라 영역을 분할합니다.
주: 공간 구분 선은 룸 경계 구성요소입니다.
- 프로젝트 탐색기에서 두 개의 새 구획도를 모두 엽니다.
- 공간을 배치할 평면과 2개의 구획도를 제외한 모든 뷰를 닫고 키보드에서 w t를 입력하여 3개의 뷰를 타일 형태로 배열합니다.
뷰 탭
창 패널
(타일 뷰) 아이콘을 클릭할 수도 있습니다.
공간 가시성 활성화
- 구획도에서 클릭하여 뷰를 활성화합니다.
- 키보드에서 v g를 입력합니다.
- 가시성 그래픽 대화상자의 모델 카테고리 탭에서 공간으로 스크롤합니다.
- 공간을 확장하고 실내 및 참조(참조 십자선을 표시할 경우)를 선택한 후 확인을 클릭합니다.
- 이 과정을 반복하여 다른 구획도 및 평면도에 공간을 표시합니다.
공간 배치
- 평면도가 활성인 상태에서 해석 탭
공간 및 구역 패널
(공간) 아이콘을 클릭합니다.
주: 프로젝트에 아직 로드되지 않은 경우
공간 태그를 로드해야 할 수도 있습니다.
- 옵션 막대에서 다음을 수행합니다.
- 상한값에 대해 위의 레벨을 지정합니다.
지붕 아래 공간에 대한 상한값을 지정할 때 공간이 지붕에 스냅되도록 상한값을 지붕 상단 위 레벨로 지정하십시오. 해당 레벨이 없을 경우 레벨을 작성합니다. 자세한 내용은 지붕까지 공간 배치를 참고하십시오.
- 간격띄우기로 0' 0"(0.00mm)를 입력합니다.
이 2개의 옵션이 공간의 수직 범위 또는 높이를 지정합니다.
주: 상한값 및 간격띄우기가 위 레벨 이상으로 지정된 경우 상한값이 룸 경계 구성요소보다 높더라도 공간의 수직 경계는 천장이나 바닥과 같은 룸 경계 구성요소에 스냅됩니다. 이것은 면적 및 체적 옵션을 선택한 경우(기본 설정), 공간의 수직 경계가 천장, 바닥 또는 지붕과 같은 룸 경계 구성요소에 스냅되기 때문입니다. 공간의 체적은 룸 경계 구성요소에 따라 계산됩니다. 면적 및 체적 옵션은 건축가 탭

룸 및 면적 패널 드롭다운

면적 및 체적 계산에 있습니다.
- 공간 상자에서 새 공간을 배치하는 경우 새로 작성이 선택되어 있는지 확인하거나 리스트에서 배치되지 않은 공간을 선택하여 배치합니다.
필요에 따라 다음 옵션을 선택합니다.
- 태그 삽입: 공간 배치 시 공간 태그를 배치합니다.
태그 삽입은 기본적으로 선택되어 있습니다. 태그 삽입을 선택한 경우 유형 선택기에서 태그 유형을 선택할 수 있습니다.
- 태그 위치 상자: 수평, 수직 또는 모델을 공간 태그 위치로 지정합니다.
태그 삽입을 선택한 경우에만 적용 가능합니다.
- 지시선: 공간 태그에 대한 지시선을 작성합니다.
태그 삽입을 선택한 경우에만 적용 가능합니다.
- 경계 요소 표시: 건물 모델에서 룸 경계 요소를 즉시 인식할 수 있도록 하이라이트합니다.
- 평면도에서 건물 모델의 영역 위로 커서를 이동하고 클릭하여 공간을 배치합니다.
주: 공간은 평면도에만 배치할 수 있습니다.
- 수정을 클릭합니다.
- 공간을 선택합니다.
- 특성 팔레트의 에너지 해석 아래에서 다음 중 하나를 수행합니다.
- 공간이 점유될 경우 점유 가능을 선택합니다.
- 공간이 점유되지 않을 경우 점유 가능 선택을 취소합니다.
- OK를 클릭합니다.
주: 룸이 포함된 영역에 공간을 배치하는 경우 점유 가능 매개변수가 자동으로 선택됩니다. 이렇게 하면 공간이 점유로 정의됩니다. 영역에 룸이 포함되지 않은 경우 점유 가능 매개변수가 자동으로 선택 취소됩니다. 이렇게 하면 공간이 비점유로 정의됩니다. 언제든지 이 매개변수를 선택하거나 선택 취소하여 공간을 재정의할 수 있습니다. 점유 가능 매개변수는 난방 및 냉방 부하 해석에 영향을 미칩니다.
공간 확인
- 구획도 및 평면도에서 공간의 체적을 나타내는 음영 면적이 베이스 레벨에서 위의 레벨까지 구속되고 (중공 또는 샤프트 등으로 인해 생성된) 음영 처리되지 않은 면적이 존재하지 않음을 확인하십시오. 이 옵션을 사용하면 보다 정확하게 체적을 계산할 수 있습니다.
- 공간이 지정된 대로 구속되지 않은 경우 구획도에서 공간의 상한값이 위 레벨로 지정되어 있는지 확인하고, 필요한 경우 공간을 수직으로 재정의합니다.
또한 음영 처리되지 않은 모든 영역을 해결해야 합니다.
그림과 같이 공간 구분 선 또는 레벨을 사용하여 다른 복합 공간을 분할할 수 있습니다.
왼쪽 예제: 레벨이 영역을 수평으로 분할합니다. 하위 영역은 베이스를 레벨 1로, 상한값을 레벨 2로 가집니다. 두 번째 공간은 베이스가 레벨 2로, 상한값이 지붕 상단 레벨로 지정됩니다.
오른쪽 예제: 공간 구분 선이 영역을 수직으로 분할합니다. 하위 영역은 베이스를 레벨 1로, 상한값을 지붕 상단 레벨로 가집니다. 공간 2는 레벨 2를 베이스로, 지붕 상단 레벨을 상한값으로 사용합니다.