구성 3: 천장 장착형 조명 기구

또 다른 일반적인 조명 구성은 천장 장착형입니다. 예로는 샹들리에, 트랙 라이트 및 매달린 설비가 있습니다.

천장 장착형 시뮬레이션 구성은 표면 마운트 및 매입형 조명 구성에 대한 UL1598 테스트 절차에 제공된 지침을 기반으로 합니다. 자연 대류 및 온도 분포를 시뮬레이션하려면 공기 체적 내에 테스트 천장이 잠기도록 하십시오. 원하는 수준의 물리적 테스트 충실도에 따라 테스트 상자를 생성하는 몇 가지 방법이 있습니다. 벽 테스트 상자 모형의 상세 정보 수준에 따라 벽으로 전도되는 열의 양이 결정됩니다.

표면 천장 조명의 경우 단열 천장, 솔리드 테스트 상자 및 UL 테스트 상자의 세 옵션을 사용할 수 있습니다. 매입형 조명의 경우 솔리드 테스트 상자와 UL 테스트 상자의 두 옵션을 사용할 수 있습니다.

천장 조명 형상

해석 영역은 테스트 설비의 구성에 따라 생성되어야 합니다. 각 구성에 대해 설비 주변의 공기 체적을 생성하여 자연 대류 및 열 전달로 인한 공기 이동을 시뮬레이션합니다.

원하는 실험 결과 충실도에 따라 여러 가지 방법으로 표면 천장 조명을 시뮬레이션할 수 있습니다.

단열 설정: 표면 천장

천장 부품이 메쉬되지 않도록 억제합니다. 이렇게 하면 열이 천장을 통해 전도되지 않으므로 설비에 대해 단열 마운팅 표면이 작성됩니다. 이 방법은 자연 대류를 통해서만 열이 제거되는 "최악의" 상황을 시뮬레이션합니다. 이 구성을 사용하면 비교 연구를 위한 설계 옵션을 빠르게 시뮬레이션할 수 있습니다.

벽 및 설비 주변의 공기 체적은 다음 치수를 연장합니다.

주: 공기는 아래쪽에서 들어오고 위쪽으로 나갑니다. 이상적인 흐름 프로파일 및 문제 해결에 대한 자세한 정보...

경목 설정: 표면 천장

이 구성을 사용하면 열이 설비에서 전도되어 주변 공기로 대류될 수 있습니다. 이 설정은 실제 설치를 복제하지 않지만, 벽의 알 수 없는 열 싱크 성능을 제거하고 온도 조절실 내부의 UL 열 테스트 전략을 모방합니다.

벽 및 설비 주변의 공기 체적은 다음 치수를 연장합니다.

UL 테스트 설정: 표면 천장

UL 테스트 설정은 경목 구성과 동일한 치수를 사용하지만 솔리드 목재 기준 대신 UL 테스트 상자를 사용합니다. 이 테스트 구성을 사용하여 실제 테스트를 매우 유사하게 모방할 수 있습니다.

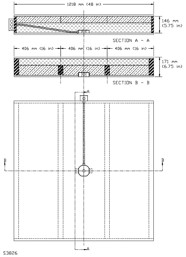
UL 1598 사양에 지정된 대로 벽 테스트 설비를 생성합니다.

CAD에서 팔각형 배선용 상자를 단순화해서 모든 판금 세부 항목을 제거합니다.

공기 체적으로 테스트 설비를 감쌉니다. 테스트 설비 주변의 공기 체적은 다음 치수를 연장합니다.

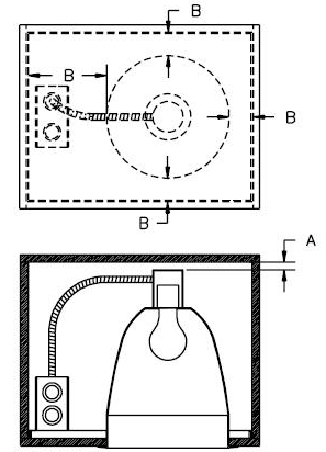
UL 테스트 설정: 매입형 천장

매입형 천장 조명을 시뮬레이션하는 권장 방법은 매입형 천장에 대해 UL 테스트 설정을 사용하는 것입니다. UL 테스트 상자는 이 테스트 구성을 사용하여 실제 테스트를 매우 가깝게 모방합니다.

UL 1598 사양에 설명된 지침에 따라 테스트 설비의 CAD 모형을 생성합니다. 1/2인치 합판, 1/2인치 틈새(아래의 치수 A 및 B)를 사용합니다. 위쪽 도면은 평면도를 보여 줍니다. 아래쪽 도면은 측면도를 보여 줍니다.

작은 반지름, 형성된 피쳐 및 구석 간격은 메쉬 크기 및 해석 시간만 늘리고 흐름 및 열 해석을 향상시키지 않으므로 미리 제거하여 조명 모형의 판금을 단순화하십시오.

설비 주변의 공기 체적을 생성하여 자연 대류 및 열 전달로 인한 공기 이동을 시뮬레이션합니다.

경계 조건

유닛 1 |벽 장착형 |극 장착형