Fórmulas de cálculo de tolerância

Obtenha as equações básicas para cadeias de cotas lineares fechadas na imagem a seguir.

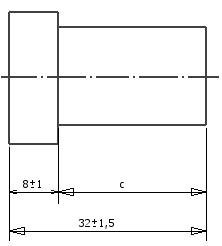
a = 32 ± 1.5 mm, b = 8 ± 1 mm

Elementos crescentes/decrescentes

Se o elemento crescente aumenta, o elemento de fechamento também aumenta. Se o elemento decrescente aumenta, o elemento de fechamento diminui, se outros elementos da cadeia permanecerem constantes.

Elemento de fechamento:

1. c = a - b

Limite de cota superior do elemento de fechamento:

2. c máx = a máx - b mín

Limite de cota inferior do elemento de fechamento:

3. c mín = a mín - b máx

Tolerância do elemento de fechamento (subtraindo a equação 3 da equação 2)

4. c máx - c mín = a máx - a mín - (b mín - b máx )

Como

5. T c = T a + T b

Nota: A tolerância do elemento de fechamento é igual à soma de tolerâncias de todos os elementos da cadeia de cotas fechadas.

Em geral, as tolerâncias da cadeia linear satisfazem a seguinte equação.

De forma análoga, as equações 2 e 3 podem ser escritas em uma forma geral.

O limite de cota superior do elemento de fechamento é igual à diferença da soma dos limites de cota superiores dos elementos crescentes e a soma dos limites de cota inferiores dos elementos decrescentes.

O limite de cota inferior do elemento de fechamento equivale à diferença da soma dos limites de cota inferiores dos elementos crescentes e a soma dos limites de cota superiores dos elementos decrescentes.

A cota nominal do elemento de fechamento pode ser expressada mediante a equação 1, tal como é exibida na equação a seguir.

Desvio do limite superior do elemento de fechamento.

Limite de desvio inferior do elemento de fechamento.