Ассоциативные размеры выбираемых объектов

Ассоциативные AD-размеры представляют собой стилевые объекты аннотаций, которые автоматически обновляются при изменении связанного объекта. Стиль AD-размеров задает размерные точки, определяющие, какие измерения отображаются для каждого объекта, к которому можно применить стиль для проставления размеров.

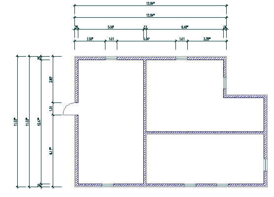
В примере ниже в качестве точек проставления размеров в стиле заданы длины стен, ширина проемов и пересечения стен. При увеличении ширины двери размеры обновляются с учетом новых измерений.

Можно определить стили для отдельных типов объектов. Например, один стиль AD-размеров для стен будет определять отображение размеров длин, максимальных значений ширины проемов окон в стенах и пересечениях стен. Другой стиль AD-размеров формообразующих элементов будет определять кромки формообразующих элементов и центр в качестве размерных точек.

Прим.: Можно задавать размеры AD-объектам во внешних ссылках, даже при высоком уровне вложенности. Это удобно в больших чертежах проекта, в которых детали здания находятся в различных файлах чертежей.

Для различных видов можно определить различные размерные точки. Например, в виде "План без подробностей" можно использовать только размеры между крайними элементами здания, а в виде "План с подробностями" - размеры длин стен и проемов в стенах.

В стиле AD-размеров можно определить до 10 цепей размеров с различными размерными точками. Например, первая цепь может задавать длины стен и проемов в стенах, а вторая - размеры несущих компонентов многокомпонентных стен.

В стиле AD-размеров также можно указать использование в размерах верхнего индекса и тип длины выносной линии - постоянный или переменный.