Функция создания документации к модели позволяет создавать ассоциативные 2D-чертежи на основе 3D-моделей AutoCAD и Inventor, а также неассоциативные 2D-чертежи на основе 3D-моделей некоторых продуктов сторонних разработчиков.
Основной составляющей 2D-чертежа, входящего в документацию модели, является вид чертежа.

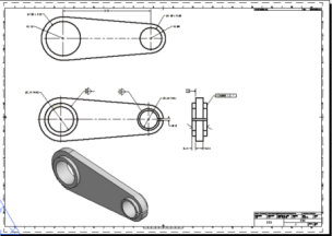
Вид чертежа — это прямоугольный объект, содержащий 2D-проекцию 3D-модели. Граница вида чертежа отображается только при выборе вида или при наведении на него курсора. Несмотря на то что граница вида чертежа размещается на текущем слое, она не печатается. Геометрия вида отображается всегда и создается на предварительно определенном наборе слоев. Поскольку геометрия вида связана с исходной 3D-моделью, невозможно выбрать геометрию вида для ее изменения. Однако можно изменить внешний вид геометрии вида путем изменения свойств геометрии вида слоев.
Первый вид, размещаемый на чертеже, является базовым. Базовые виды — это виды чертежа, которые извлекаются непосредственно из 3D-модели.

После размещения базового вида на листе можно создать проекционные виды из него. В отличие от базового вида, проекционные виды не являются напрямую производными от 3D-модели. Они являются производными от базового вида (или другого проекционного вида, который уже существует в пространстве листа). Проекционные виды сохраняют связь "родитель-потомок" с видом, из которого они были созданы. Параметры дочернего вида являются производными от родительского объекта. При необходимости можно переопределить эти параметры.
Можно также создать виды сечений и выносные элементы на основе любого существующего вида чертежа. Сечение является проекционным видом, отображающим внутренние элементы модели. Выносной элемент является проекционным видом, увеличивающим выбранную часть модели.
После создания вида можно присоединить в геометрию вида примечания, размеры, обозначения и другие аннотации.

Объекты вида чертежа отфильтровываются из всех команд копирования, но их можно перемещать, поворачивать или удалять, как любой другой объект.
Виды чертежа, созданные в более поздней версии AutoCAD, нельзя редактировать в более ранней версии. Например, виды чертежа, созданные в AutoCAD 2014, нельзя редактировать в AutoCAD 2013, несмотря на то что в обеих версиях AutoCAD сохранение выполняется в одном и том же формате файла (AutoCAD 2013). В таком файле чертежа невозможно редактировать свойства вида чертежа, добавлять новые виды чертежа или обновлять любые виды чертежа.