Используйте инструмент "Отображение невидимых линий для элемента" для отображения элементов модели и узлов, скрытых другими элементами на текущем виде.
Инструмент "Показать невидимые линии для элемента" позволяет переопределить графическое отображение отдельных элементов на текущем виде. Этот инструмент можно использовать для элементов, категории которых включают подкатегорию "Невидимые линии".
Прим.: Инструмент "Показать невидимые линии для элемента" недоступен для следующих объектов:
- Виды в перспективе.
- Виды, для которых параметру "Показать невидимые линии" присвоено значение "Все" или "Нет". (Ему должно быть присвоено значение <По категории>).
- Элементы в связанных моделях
- Виды, для параметра «Категория» которых выбрано значение «Электрооборудование», «Механизмы» или «Сантехника».
Например, на южном фасаде имеется вход, и необходимо с помощью невидимых линий показать контур этого входа на северном фасаде.
- Откройте вид, на котором требуется показать невидимые линии скрытого элемента.
- (При необходимости). Чтобы отобразить свойства вида на палитре свойств, щелкните правой кнопкой мыши в пустой области вида и выберите "Свойства".
- На палитре свойств выберите для параметра "Показать невидимые линии" значение <По категории>.
Прим.: Невидимые линии, заданные с помощью инструмента "Показать невидимые линии для элемента", отображаются только в том случае, если параметру вида "Показать невидимые линии" присвоено значение <По категории>.
- На панели управления видом для параметра "Визуальный стиль" выберите "Каркас".
Стиль "Каркас" позволяет выбрать скрытые элементы для отображения.
- Выберите вкладку "Вид"
панель "Графика"
("Показать невидимые линии для элемента").
- (Необязательная операция). Для отображения невидимых линий для нескольких элементов выберите на панели параметров параметр "Выбрать несколько".
- Выберите элемент, скрывающий другой элемент.
- Выберите один или несколько скрытых элементов.
- На панели управления видами для параметра "Визуальный стиль" выберите стиль, отличный от стиля "Каркас".
Скрытые ребра и линии для этих элементов отображаются как невидимые линии.
- (Необязательная операция). Для отмены результатов применения этого инструмента измените визуальный стиль на стиль "Каркас" и выберите вкладку "Вид"
панель "Графика"
("Скрыть невидимые линии для элемента").
Затем выберите элемент, за которым находится скрытый элемент, выберите скрытые элементы и повторно измените визуальный стиль.
- Нажмите "Изменение", чтобы завершить работу с инструментом "Невидимые линии".
Для изменения стилей, используемых для отображения невидимых линий в пределах всего проекта, используйте диалоговое окно "Стили объектов".
Для изменения стилей, используемых для отображения невидимых линий только на текущем виде, используйте диалоговое окно "Видимость/Графика".
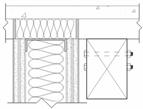
Пример: показать невидимые линии для компонентов узла
В следующем примере иллюстрируются результаты применения инструмента "Показать невидимые линии для элемента" при выборе обрешетки и болта 4x6. Отображаются невидимые линии одного болта, а линии для второго болта скрыты.

Прим.: Объекты должны находиться в правильном порядке. Например, нельзя скрыть линии болта, расположенные поверх шпильки 4Х6. Для этого болт сначала следует разместить позади шпильки. Для показа болта в режиме скрытия линий выберите шпильку 4Х6, а затем — болт.