Создавайте виды узлов для добавления дополнительной информации в определенные участки модели.
Вкладка "Вид"панель "Создание" ("Фрагмент")
Вкладка "Вид"панель "Создание" ("Разрез")
Темы в этом разделе
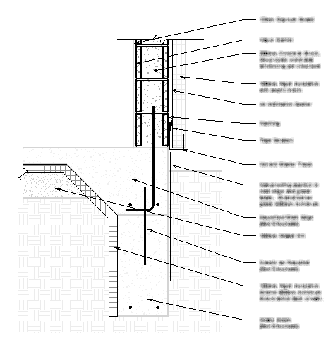
Виды узлов
Видом узла называется вид модели, помещенный на другой вид как фрагмент или разрез. Обычно на видах этого типа модель показана с более высоким уровнем детализации, чем на исходном виде.
Создание связей с видом фрагмента
При создании детализирующего фрагмента на основе вида разреза, вида в плане или вида фасада вид можно связать с определенной областью модели здания.
Свойства типа для узла
Каждый вид узла имеет свойства типа для марок разрезов, марок фрагментов и меток ссылок.
Создание вида узла
Можно создать фрагмент из вида в плане, разреза или фасада, а затем добавить в него компоненты узла. В качестве основы при этом используется геометрия модели. При создании фрагмента или узла в качестве опорных могут использоваться другие виды узлов, а также чертежные виды модели.
Копирование вида узла
При копировании вида можно определить необходимость копирования в новый вид как геометрии модели, так и геометрии узла.
Сохранение вида во внешнем проекте
Вид можно сохранить во внешнем проекте Revit. При этом в новом файле проекта сохраняется вид и все видимые на нем элементы (элементы модели и специфические для вида элементы).