了解如何将钢筋和安装件放置在预制双壁中。
在使用“拆分”命令创建双壁预制部件后,即可将钢筋添加到选定的部件。用于添加钢筋的选项与用于其他受支持预制图元的选项类似。
“钢筋”命令将在双壁中添加所有必要的图元。在此过程中,首先创建钢筋,然后计算格构梁,以便沿墙以与墙质心等距方式在钢筋上平放。考虑到格构梁的实际位置,将添加斜顶和套筒,以便斜顶位于格构梁的位置。套筒距格构梁的偏移由“配置”对话框中指定的值确定。
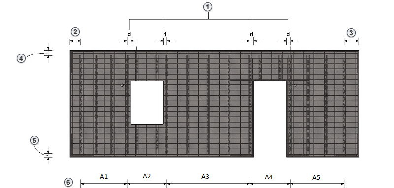
格构梁在
“区域钢筋类型”对话框的“桁架”选项卡中进行定义。
注: “桁架”选项卡在将“桁架”选择为“钢筋类型”时可用。
“桁架”选项卡中找到的参数如下所述:
- 与洞口的距离 d。
- 分布起点偏移。
- 分布终点偏移。
- 长度终点偏移。
- 长度起点偏移。
- 格构梁分布(A=面积)。
与针对实体墙一样,可以定义边缘钢筋。它基于每个双壁壳的轮廓。当放置边缘钢筋时,请遵循以下规则:
- 层数设置为 1 - 边缘钢筋仅在第一个壳中应用。
- 层数设置为 2 - 边缘钢筋在第一个壳和第二个壳中应用。
- 层数设置为 3 - 边缘钢筋在第一个壳中应用 3 层边缘钢筋,在第二个壳中应用一层边缘钢筋。
手动钢筋和安装件
可以手动或通过使用 Dynamo 将钢筋和安装件放置在每个壳上。接下来,使用“安装件”命令来自动将钢筋和(或)安装件添加到部件中。在此阶段期间,所有相关数据(如壳和安装件侧)都写入钢筋和(或)安装件中。此外,对于钢筋和钢筋网片,在使用“安装件”命令时将会考虑部件总重量中的实际钢筋和钢筋网片重量。