视图范围是控制对象在视图中的可见性和外观的水平平面集。
每个平面图都具有视图范围属性,该属性也称为可见范围。 定义视图范围的水平平面为“俯视图”、“剖切面”和“仰视图”。 顶剪裁平面和底剪裁平面表示视图范围的最顶部和最底部的部分。 剖切面是一个平面,用于确定特定图元在视图中显示为剖面时的高度。 这三个平面可以定义视图范围的主要范围。
视图深度是主要范围之外的附加平面。 更改视图深度,以显示底裁剪平面下的图元。 默认情况下,视图深度与底剪裁平面重合。
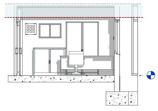
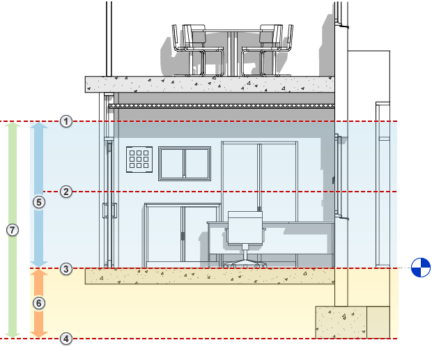
以下立面显示平面视图的
视图范围:顶部
、剖切面
、底部
、偏移(从底部)
、主要范围
和视图深度
。
右侧平面视图显示了此视图范围的结果。
|
|
在平面视图中,Revit 使用以下规则以显示与剖切平面相交的图元:
与剖切面相交的图元显示的例外情况包括以下内容:
从边界框的顶部到主视图范围的底部测得的结果为 6 英尺(或 2 米)。 例如,如果创建的墙的顶部比底剪裁平面高 6 英尺,则在剖切平面上剪切墙。 当墙顶部不足 6 英尺时,整个墙显示为投影,即使是与剖切面相交的区域也是如此。 将墙的“墙顶定位标高”属性指定为“未连接”时,始终会出现此行为。 如果墙的“墙顶定位标高”属性指定为“连接”,则剖切面位置将始终用于定义对墙进行剪切还是投影。
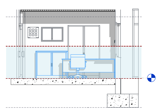
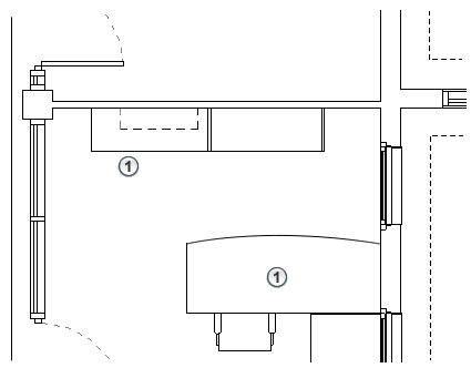
在下面的标高中,蓝色高亮显示指示与剖切平面相交的图元。
右侧平面视图显示以下内容:
使用剖面线宽绘制的图元。 (墙、门和窗)
使用投影线宽绘制的图元,因为它们不可剖切(橱柜)。
|
|
在平面视图中,Revit 使用图元类别的投影线宽绘制这些图元。
在下面的标高中,蓝色高亮显示指示低于剖切面且高于底剪裁平面的图元。
右侧平面视图显示以下内容:
使用投影线宽绘制的图元,因为它们不与剖切面相交。 (橱柜、桌子和椅子)
|
|
视图深度内的图元使用 <超出> 线样式绘制,与图元类别无关。
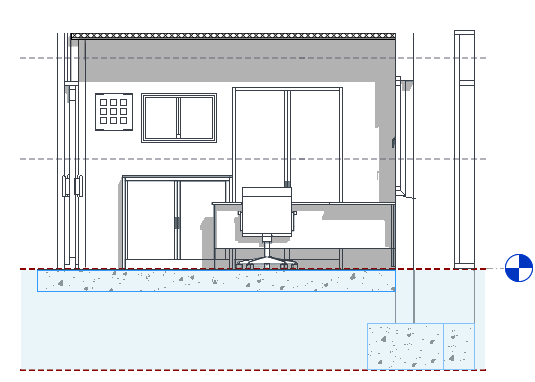
例外情况:位于视图范围之外的楼板、结构楼板、楼梯和坡道使用一个调整后的范围,比主要范围的底部低 4 英尺(约 1.22 米)。 在该调整范围内,使用该类别的投影线宽绘制图元。 如果它们存在于此调整范围之外但在视图深度内,则使用 <超出> 线样式绘制这些图元。
例如,在下面的标高中,蓝色高亮显示指示低于底剪裁平面且在视图深度内的图元。
右侧平面视图显示以下内容:
使用 <超出 > 线样式绘制的视图深度内的图元(基础)。
使用投影线宽为其类别绘制的图元,因为它满足例外条件。
|
|
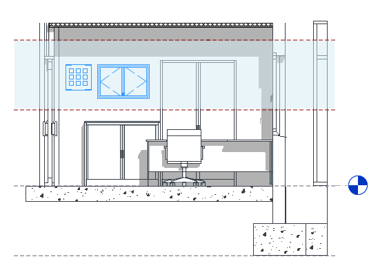
这些图元不会显示在平面视图中,除非其类别是窗、橱柜或常规模型。 这三个类别中的图元使用从上方查看时的投影线宽绘制。
例如,在下面的标高中,蓝色高亮显示指示视图范围顶部和剖切平面之间出现的图元。
右侧平面视图显示以下内容:
使用投影线宽绘制的壁装橱柜。 在这种情况下,在橱柜族中定义投影线的虚线样式。
未在平面平面中绘制的壁灯(照明类别),因为其类别不是窗、橱柜或常规模型。
|
|
与平面视图类似,天花板投影平面也有一个视图范围设置,但是存在一些区别。
