拉伸既有的連接器,並加入、移動和置換連接器接腳。
「插入連接器」工具列上包含用於修改連接器和連接器接腳的工具。您還可以加入、移除或移動位於連接器內部的接腳。
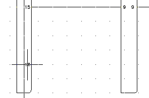
拉伸既有的連接器


。 查找
指定要拉伸的連接器末端: 選取 PJ1 的底端
指定位移的第二個點:
朝黑盒子 1 的底端方向向下拉連接器


加入連接器接腳


。 查找
選取連接器: 選取 PJ1
指定插入新接腳的位置或 [重置(R)] <16>:
從 PJ1 上的接腳 15 向下選取 4 個空間,按一下右鍵並選取「輸入」
即會在選取點插入下一個可使用的接腳號碼 (16)。



。 查找
選取連接器: 選取 PJ6
指定插入新接腳的位置或 [重置(R)] <10>:
選取 PJ1 上的新接腳 16,以插入其線內的接腳 10,然後按一下右鍵並選取「輸入」

修改連接器接腳


。 查找
選取要移動的連接器接腳: 選取 PJ1 上的接腳 16
指定接腳 16 的新位置: 選取 PJ1 上的 2 個空間
選取要移動的連接器接腳: 選取 PJ6 上的接腳 10
指定接腳 10 的新位置:
選取 PJ1 上的接腳 16,以移動其線內的接腳 10,然後按一下右鍵



。 查找
選取連接器接腳: 選取 PJ1 上的接腳 16
選取連接器接腳: 置換為: 選取 PJ1 上的接腳 12,然後按一下右鍵


。 查找
選取要反轉的連接器: 選取頂端線內連接器,然後按一下右鍵



。 查找
接腳間距: 1.0
接腳計數: 2
固定間距
接腳清單: 1
全部插入
指定插入點或 [Z = 縮放,P = 平移,X = 配線交叉,V = 水平/垂直,TAB = 翻轉]:
進行相應選取以將連接器放置在黑盒子 1 的頂端


。 查找
選取要旋轉的連接器或 [保留(H)]:
選取新連接器,然後按一下右鍵並選取「輸入」
