So schließen Sie eine Materialdefinition aus 2D-Außenkanten aus

Gehen Sie wie folgt vor, um Komponenten, denen eine bestimmte Materialdefinition zugewiesen wurde, von den Außenkanten eines 2D-Schnitts auszuschließen.

Bei der Erstellung eines 2D-Schnitts können Sie eine Schnittkomponente mit der Bezeichnung "Außenkante" anzeigen. Bei den Außenkanten handelt es sich um die Vereinigung aller von der Schnittlinie durchdrungenen Objektflächen, die in einer Komponente mit einem Schraffurmuster zusammengeführt wurden. Dies ist eine häufig verwendete Ansicht eines 2D-Schnitts.

Per Vorgabe sind alle Komponenten, denen Materialdefinitionen zugewiesen wurden, in den Außenkanten enthalten. Unter Umständen sollen jedoch bestimmte Materialdefinitionen, z. B. Glas, von den Außenkanten ausgeschlossen werden.

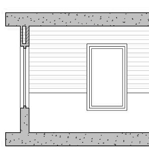
2D-Schnitt-Außenkante mit Glas ausgeschlossen (links)

  1. Klicken Sie auf Registerkarte Verwalten Gruppe Stil und DarstellungStil-Manager.

    Der Stil-Manager wird angezeigt, und die aktuelle Zeichnung ist in der Baumstruktur erweitert.

  2. Erweitern Sie die Ansicht von Mehrzweckobjekte und anschließend die Ansicht von Materialdefinitionen.
  3. Wählen Sie die zu ändernde Materialdefinition.
  4. Klicken Sie auf die Registerkarte Darstellungseigenschaften.
  5. Wählen Sie die Darstellung, in der Änderungen angezeigt werden sollen, und anschließend Stil überschreiben.

    Die aktuelle Darstellung wird fett gedruckt angezeigt.

  6. Klicken Sie ggf. auf .
  7. Klicken Sie auf die Registerkarte Weitere.
  8. Wählen Sie Von 2D-Außenkante ausschließen.
  9. Klicken Sie auf OK.