LiveView-Übung: Radieren und Zuschneiden eines Bilds

In dieser Übung radieren Sie einige kleine Objekte aus einem Bild und schneiden ein Objekt zu.

So radieren Sie Objekte und schneiden Sie Objekte zu
1

Öffnen Sie die Datei C:\Programme\Autodesk\AutoCAD Raster Design 2020\Getting Started Guide\LiveView_Rub.dwg

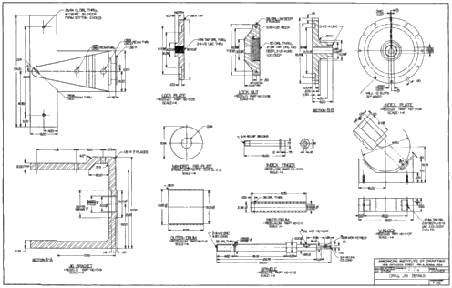
Sie sehen eine Reihe von eigenständigen Objekten in einem Bild.

2

Vergrößern Sie die Anzeige, um das Objekt Mandrel Rib Plate deutlich zu sehen.

In den folgenden Schritten entfernen Sie dieses Objekt aus dem Bild.

3

Klicken Sie auf Raster EntfernenRechteckige Region.

Klicken Sie, und ziehen Sie ein Rechteck um das Objekt Mandrel Rib Plate und dessen Schriftfeld. Klicken Sie dann mit der rechten Maustaste, und drücken Sie die EINGABETASTE, um die Region zu radieren.

Weitere Übung: Radieren Sie noch andere Objekte, ausgenommen das Objekt Jig Bracket in der unteren linken Ecke. Verwenden Sie dazu einige der anderen Regionstypen aus dem Menü Entfernen.

4

Vergrößern Sie die Anzeige, um das Objekt Jig Bracket in der unteren linken Ecke deutlich zu sehen.

Im nächsten Schritt erstellen Sie einen Zuschneidebereich um dieses Objekt.

5

Klicken Sie auf Raster ZuschneidenRechteckige Region.

Klicken Sie, und ziehen Sie ein Rechteck um das Objekt Jig Bracket und dessen Schriftfeld. Klicken Sie dann erneut.

Der gesamte Bildbereich, der außerhalb des Zuschneidebereichs liegt, wird gelöscht. Sie können das Bild Jig Bracket ggf. unter einem neuen Namen speichern.