Sie können benutzerdefinierte Ortho-Ansichten von Plant 3D-Modellen erstellen und diese in einer 2D-Zeichnung platzieren.
Bei orthogonalen Zeichnungen handelt es sich um DWG-Dateien, von denen jede mehrere Ortho-Ansichten mit aus Plant 3D-Modellen extrahierten Daten enthalten kann. Wenn sich die Quellmodelle ändern, können Sie die orthogonalen Zeichnungen aktualisieren, um die Änderungen zu berücksichtigen.
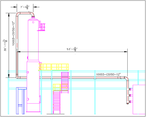
In 2D-Ableitungen werden zweidimensionale Ansichten von Rohrleitungen, Armaturen, Apparaten und Stahlbaustählen in Plant 3D-Modellen gezeigt. Die Zeichnungen können über Beschriftungen, Bemaßungen, Schnittlinien (nur in der Draufsicht) und Rohrausbrüche verfügen, und Leitungen bzw. Objekte können ein- oder ausgeblendet werden. Hier sehen Sie ein Beispiel für eine einzelne Ansicht.


Sie können für 2D-Ableitungen eine benutzerdefinierte Vorlage mit einem Schriftfeld einrichten oder die Standardvorlage verwenden.
Projektzeichnungen, die Referenzen zu anderen Zeichnungen enthalten, stehen für 2D-Ableitungen zur Verfügung. Es stehen auch projektunabhängige XRefs zur Verfügung, diese werden jedoch nur als Grafiken dargestellt.