Beispiele für die Bemaßung von Einbauteilen in Fertigteil-Fertigungsplänen

Überprüfen Sie verschiedene Arbeitsablaufbeispiele für die Bemaßung von Einbauteilen in Fertigteil-Fertigungsplanansichten.

Bemaßung von Einbauteilen auf einer Bemaßungslinie

Die Bemaßungen aller Einbauteile der gleichen Familie werden auf einer Linie platziert, wenn sich die Einbauteile auf derselben Seite des Basisbauteils befinden. Die Referenz für diese Position befindet sich in der Mitte des Elements. Alle Einbauteile mit demselben Familiennamen oberhalb der Mitte des Basisbauteils werden oberhalb des Elements bemaßt. Die Einbauteile unterhalb der Mitte werden unterhalb des Elements bemaßt. Dieselbe Regel gilt für vertikale Bemaßungslinien. Bemaßungspunkte an den Grenzen des Basisbauteils werden der Bemaßungslinie neben den Maßpunkten der Einbauteile hinzugefügt (ein Punkt links und rechts oder oben und unten).

Beispiel: Bemaßung der Mitte der Ankerplatten in beiden Richtungen in der Draufsicht

  1. Öffnen Sie die Ankerplattenfamilie aus: Libraries\US Metric\Structural Connections\Mounting Parts\Fastening Plates\M_Plate with Anchors.rfa


  2. Wechseln Sie im Projektbrowser zu Grundrisse, Referenzebene, und erstellen Sie eine horizontale Modelllinie und eine vertikale Modelllinie, die sich in der Mitte der Ankerplatte schneiden.


  3. Definieren Sie die Unterkategorie "Bemaßung_Oben", und legen Sie diese als Unterkategorie für die beiden Linien fest.
  4. Definieren Sie den Exemplarparameter Sichtbarkeit Bemaßungslinie, und legen Sie die Linien als unsichtbar fest.
  5. Laden Sie die Ankerplattenfamilie in ein Projekt, und platzieren Sie sie auf einer Wand.


  6. Klicken Sie auf Registerkarte Fertigbeton Gruppe Segmentierung (Trennen), um die Wand zu trennen.
  7. Klicken Sie auf Registerkarte Fertigbeton Gruppe Verbindungen (Einbauteile), um die Ankerplatten der Baugruppe hinzuzufügen.
  8. Klicken Sie auf Registerkarte Fertigbeton Gruppe Fertigung (Fertigungspläne), um einen Fertigungsplan für die Baugruppe zu erstellen.
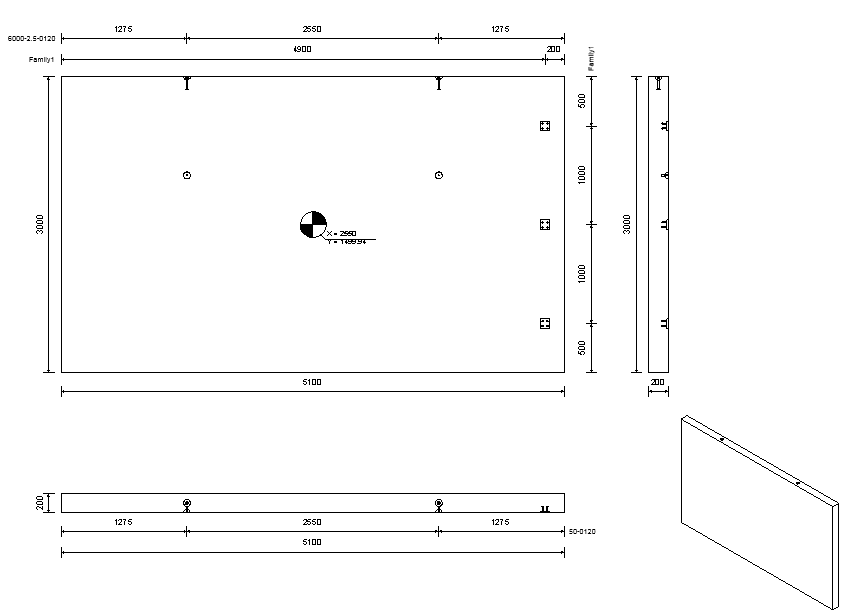
Die Mitte der Ankerplatten wird in der Ansicht von oben bemaßt (auf einer Linie, da sie zur selben Familie gehören):


Basierend auf dem Namen der Unterkategorie sollten die Bemaßungslinien nur erstellt werden, wenn die Ankerplatten in der Draufsicht betrachtet werden (wie in der Familie). Für die Wand in diesem Beispiel gilt dies nur in der Vorderansicht.

Wenn die Platten der oberen Fläche der Wand hinzugefügt wurden, werden die Familien nur in der Draufsicht der Zeichnung bemaßt:




Beispiel: Bemaßen der Ankerplattenfamilie mit nur einer Bemaßungslinie

  1. Erstellen Sie nur eine Bemaßungslinie anstelle von zwei sich in der Mitte schneidenden Linien. Platzieren Sie die Linie in der Mitte der Familie, senkrecht zur Ebene der Ankerplatte.
  2. Legen Sie eine Unterkategorie und den Sichtbarkeitsparameter wie im ersten Beispiel fest.

  3. Laden Sie die Familie in ein Projekt, und platzieren Sie sie auf einer Wand.
  4. Klicken Sie auf Registerkarte Fertigbeton Gruppe Segmentierung (Trennen), um die Wand zu trennen.
  5. Klicken Sie auf Registerkarte Fertigbeton Gruppe Verbindungen (Einbauteile), um die Ankerplatten der Baugruppe hinzuzufügen.
  6. Klicken Sie auf Registerkarte Fertigbeton Gruppe Fertigung (Fertigungspläne), um einen Fertigungsplan für die Baugruppe zu erstellen.


Die Familie wird auf die gleiche Weise wie im ersten Beispiel bemaßt, jedoch mit zwei wesentlichen Unterschieden:
  • Im ersten Beispiel wäre es möglich gewesen, nur eine Linie wie oben beschrieben zu erstellen und nur vertikale oder nur horizontale Bemaßungen zu erhalten. Im zweiten Beispiel werden beide Richtungen mit derselben Referenzlinie bemaßt.
  • Wenn die Ankerplatte im ersten Beispiel gedreht hinzugefügt wird, kann sie gar nicht bemaßt werden (Referenzlinien sind nicht mehr parallel zur Achse der Wand). Im zweiten Beispiel wird die Mitte der Platte immer bemaßt.

Beispiel: Bemaßen der Ankerplatte mithilfe der Begrenzung der Familie

  1. Entfernen Sie alle Bemaßungslinien von der Familie.
  2. Laden Sie die Familie in das Projekt.
  3. Klicken Sie auf Registerkarte Fertigbeton Gruppe Fertigung (Fertigungspläne), um einen Fertigungsplan für die Baugruppe zu erstellen.


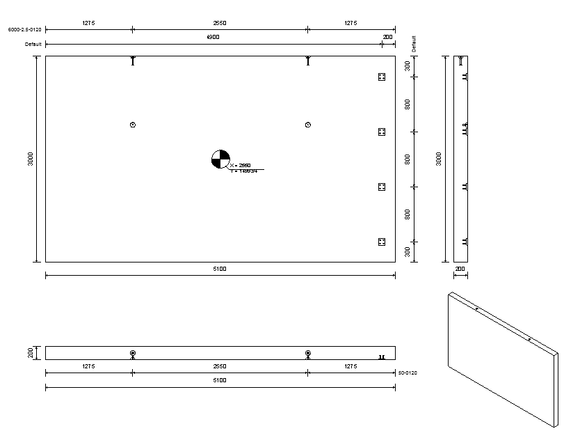
Die Grenzen der Ankerplatten werden in allen Ansichten bemaßt (mit einer Bemaßung, da es sich immer um die gleiche Familie handelt).

In der Drauf- und Vorderansicht wird nur die Platte bemaßt (ohne die Anker), da in diesen Ansichten nur die abgerundeten Flächen der Anker sichtbar sind und daher keine Referenzen zur Bemaßung angeben.

Beispiel: Bemaßen mit verschachtelten Familien

  1. Erstellen Sie eine neue Familie mit der flächenbasierten Vorlage Metric Generic Model.
  2. Laden Sie die Ankerplatten mit Bemaßungen in die Familie, und platzieren Sie drei Exemplare auf der oberen Fläche des Familienkörpers.


  3. Anmerkung: Der Exemplarparameter Sichtbarkeit Bemaßungslinie muss an die neue Familie weitergegeben werden.
  4. Platzieren Sie die neue Familie auf der Wand.


  5. Klicken Sie auf Registerkarte Fertigbeton Gruppe Segmentierung (Trennen), um die Wand zu trennen.
  6. Klicken Sie auf Registerkarte Fertigbeton Gruppe Fertigung (Fertigungspläne), um einen Fertigungsplan für die Baugruppe zu erstellen.
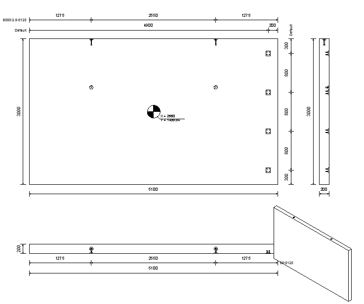
Die Ankerplatten werden nur in der Frontansicht bemaßt: