In dieser Übung erstellen Sie ein Flachdach mithilfe der durch die Außenwände gebildeten Grundfläche und ein geneigtes Dach mit einem Dachüberstand am Eingang.
|
Kategorie
|
Neue Benutzer
|
|
Erforderliche Zeit
|
10 Minuten
|
|
Verwendete Lernprogrammdateien
|
GSG_05_add_roof.rvt
|
|
Bevor Sie beginnen, laden Sie die Datei GSG_05_add_roof.rvt herunter.
Ziele
- Hinzufügen von Dachlinien mit Neigung und definiertem Dachüberstand.
- Hinzufügen eines Flachdachs.
- Verbinden von Innenwänden mit dem Dach.
Video ansehen
Zeichnen des Dachs
- Öffnen Sie das Projekt GSG_05_add_roof.rvt.
- Öffnen Sie den Grundriss 02 - Lower Parapet.
- Klicken Sie auf Registerkarte Architektur
Dropdown-Liste Dach 
(Dach über Grundfläche).
- Erstellen eines geneigten Dachs mit einem Dachüberstand:
- Klicken Sie unter Zeichnen auf
(Wände auswählen).
- Geben Sie in der Optionsleiste für den Dachüberstand 600 ein, und aktivieren Sie Bestimmt Neigung.
- Markieren Sie im Zeichenbereich eine Wand beim Eingang. Wenn eine gestrichelte Linie auf der Außenseite der Wand angezeigt wird, drücken Sie die Tabulatortaste, um die Wandkette auszuwählen, und klicken Sie, um die Dachlinien zu platzieren.
- Legen Sie in der Eigenschaftenpalette die Basisebene auf 03 - Upper Parapet fest.
- Klicken Sie in der Gruppe Modus auf
(Fertig stellen), um das Dach zu platzieren.
- Zeichnen eines Flachdachs:
- Legen Sie in der Eigenschaftenpalette den Wert der Unterlage auf 01 - Store Floor fest.
- Klicken Sie auf Registerkarte Architektur
Dropdown-Liste Dach 
(Dach über Grundfläche).
- Klicken Sie unter Zeichnen auf
(Wände auswählen).
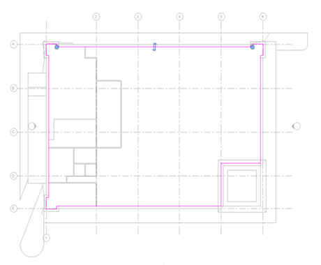
- Legen Sie in der Optionsleiste den Dachüberstand auf 0 fest, und deaktivieren Sie Bestimmt Neigung.
- Legen Sie in der Eigenschaftenpalette den Basisversatz von Ebene auf -750 fest.
- Führen Sie im Zeichenbereich die folgenden Schritte durch:
- Markieren Sie eine Außenwand.
- Drücken Sie die Tabulatortaste, um die Wandkette auszuwählen.
- Klicken Sie, um die Dachlinien zu platzieren.
- Klicken Sie in der Gruppe Modus auf
(Fertig stellen).
Teil 6: Platzieren von Türen