Mithilfe des Werkzeugs Verdeckte Linien nach Element anzeigen können Sie in der aktuellen Ansicht von anderen Elementen verdeckte Modell- und Detailelemente anzeigen.
Das Werkzeug Verdeckte Linien nach Element anzeigen ermöglicht es, die grafische Darstellung einzelner Elemente in der aktuellen Ansicht außer Kraft zu setzen. Verwenden Sie dieses Werkzeug für Elemente, in deren Kategorien die Unterkategorie Verdeckte Linien vorhanden ist.
Anmerkung: Das Werkzeug Verdeckte Linien nach Element anzeigen ist für die folgenden Ansichten nicht verfügbar:
- Perspektivische Ansichten.
- Ansichten, in denen für den Ansichtsparameter Verdeckte Linien anzeigen Alle oder Keine festgelegt wurde. (Es muss <Nach Disziplin> gewählt werden.)
- Elemente in verknüpften Modellen.
So könnte z. B. in der Südansicht ein Eingang vorhanden sein, und Sie möchten den Umriss dieses Eingangs in der Nordansicht mit verdeckten Linien andeuten.
- Öffnen Sie eine Ansicht, in der Sie verdeckte Linien für das verdeckte Element anzeigen möchten.
- (Falls erforderlich) Um Ansichtseigenschaften in der Eigenschaftenpalette anzuzeigen, klicken Sie mit der rechten Maustaste in einen leeren Bereich der Ansicht und wählen Eigenschaften.
- Wählen Sie in der Eigenschaftenpalette für Verdeckte Linien anzeigen die Option <Nach Disziplin>.
Anmerkung: Verdeckte Linien, die mithilfe des Werkzeugs Verdeckte Linien nach Element anzeigen angegeben wurden, werden nur angezeigt, wenn für den Ansichtsparameter Verdeckte Linien anzeigen der Wert <Nach Disziplin> festgelegt wurde.
- Klicken Sie in den Steuerelementen für Ansichten auf Bildstil und Drahtmodell.
Im Bildstil Drahtmodell ist es möglich, das anzuzeigende verdeckte Element auszuwählen.
- Klicken Sie auf Registerkarte Ansicht
Gruppe Grafik 
(Verdeckte Linien nach Element anzeigen).
- (Optional) Wenn Sie verdeckte Linien für mehrere Elemente anzeigen möchten, wählen Sie in der Optionsleiste die Option Mehrfachauswahl.
- Wählen Sie ein Element aus, das ein anderes Element verdeckt.
- Wählen Sie ein oder mehrere verdeckte Elemente aus.
- Wählen Sie in den Steuerelementen für Ansichten einen anderen Bildstil als Drahtmodell.
Die verdeckten Kanten und Linien dieser Elemente werden als verdeckte Linien angezeigt.
- (Optional) Um die Wirkung dieses Werkzeugs aufzuheben, ändern Sie den Bildstil in Drahtmodell und klicken auf Registerkarte Ansicht
Gruppe Grafik 
(Verdeckte Linien nach Element entfernen).
Wählen Sie dann zuerst das verdeckende Element und dann die verdeckten Elemente aus, und ändern Sie erneut den Bildstil.
- Klicken Sie auf Ändern, um das Dialogfeld Verdeckte Linien zu schließen.
Zum Ändern der Stile, mit denen verdeckte Linien im gesamten Projekt angezeigt werden sollen, verwenden Sie das Dialogfeld Objektstile.
Um die Stile für die Anzeige verdeckter Linien nur in der aktuellen Ansicht zu ändern, verwenden Sie das Dialogfeld Sichtbarkeit/Grafiken.
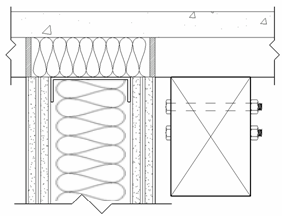
Beispiel: Verdeckte Linien anzeigen für Detailkomponenten
Das folgende Beispiel zeigt das Ergebnis nach Verwendung von Verdeckte Linien nach Element anzeigen und Auswahl des 4x6-Ständers und eines Bolzens. Für einen der Bolzen werden die verdeckten Linien angezeigt, während sie für den zweiten Bolzen verdeckt bleiben.

Anmerkung: Die Objekte müssen auf die richtige Weise angeordnet sein. Die Linien eines Bolzens, der sich vor dem 4x6-Ständer befindet, können nicht verdeckt werden. Der Bolzen muss hinter dem Ständer liegen, damit er durch diesen verdeckt werden kann. Wenn die Linien des Bolzens verdeckt angezeigt werden sollen, wählen Sie zuerst den 4x6-Ständer und dann den Bolzen.