Teil 5: Erstellen eines Dachs

In dieser Übung erstellen Sie ein Flachdach mithilfe der durch die Außenwände gebildeten Grundfläche und ein geneigtes Dach mit einem Dachüberstand am Eingang.

Kategorie Neue Benutzer
Erforderliche Zeit 10 Minuten
Verwendete Lernprogrammdateien GSG_05_add_roof.rvt

Bevor Sie beginnen, laden Sie die Datei GSG_05_add_roof.rvt herunter.

Ziele

Video ansehen

Zeichnen des Dachs

  1. Öffnen Sie das Projekt GSG_05_add_roof.rvt.
  2. Öffnen Sie den Grundriss 02 - Lower Parapet.
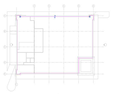
  3. Klicken Sie auf Registerkarte Architektur Dropdown-Liste Dach (Dach über Grundfläche).
  4. Erstellen eines geneigten Dachs mit einem Dachüberstand:
    1. Klicken Sie unter Zeichnen auf (Wände auswählen).
    2. Geben Sie in der Optionsleiste für den Dachüberstand 600 ein, und aktivieren Sie Bestimmt Neigung.
    3. Markieren Sie im Zeichenbereich eine Wand beim Eingang. Wenn eine gestrichelte Linie auf der Außenseite der Wand angezeigt wird, drücken Sie die Tabulatortaste, um die Wandkette auszuwählen, und klicken Sie, um die Dachlinien zu platzieren.
    4. Legen Sie in der Eigenschaftenpalette die Basisebene auf 03 - Upper Parapet fest.
    5. Klicken Sie in der Gruppe Modus auf (Fertig stellen), um das Dach zu platzieren.
  5. Zeichnen eines Flachdachs:
    1. Legen Sie in der Eigenschaftenpalette den Wert der Unterlage auf 01 - Store Floor fest.
    2. Klicken Sie auf Registerkarte Architektur Dropdown-Liste Dach (Dach über Grundfläche).
    3. Klicken Sie unter Zeichnen auf (Wände auswählen).
    4. Legen Sie in der Optionsleiste den Dachüberstand auf 0 fest, und deaktivieren Sie Bestimmt Neigung.
    5. Legen Sie in der Eigenschaftenpalette den Basisversatz von Ebene auf -750 fest.
    6. Führen Sie im Zeichenbereich die folgenden Schritte durch:
      1. Markieren Sie eine Außenwand.
      2. Drücken Sie die Tabulatortaste, um die Wandkette auszuwählen.
      3. Klicken Sie, um die Dachlinien zu platzieren.
      4. Klicken Sie in der Gruppe Modus auf (Fertig stellen).

Verbinden von Wänden mit dem Dach

  1. Klicken Sie im Schnellzugriff-Werkzeugkasten auf (Standard-3D-Ansicht).

    Beachten Sie, dass die Innenwände durch das Dach reichen.

  2. Positionieren Sie den Mauszeiger über einer Innenwand, und klicken Sie, um die Wand auszuwählen.
  3. Klicken Sie mit der rechten Maustaste, und wählen Sie Alle Exemplare auswählenin dieser Ansicht, um alle Innenwände auszuwählen.
  4. Klicken Sie auf Registerkarte Ändern | Wände Gruppe Wand ändern (Oberkante/Unterkante fixieren).
  5. Klicken Sie, um das Flachdach auszuwählen.

    Beachten Sie, dass die Wände nicht länger durch das Dach reichen.

Teil 6: Platzieren von Türen