LiveView Exercise: Rubbing and Cropping an Image

In this exercise, you rub some small entities from an image and crop around another entity.

To rub and crop objects
1

Open the file C:\Program Files\Autodesk\AutoCAD Raster Design 2020\Getting Started Guide\LiveView_Rub.dwg

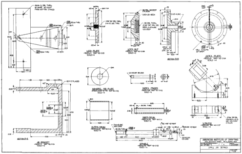
You see a number of separate entities in a scanned image.

2

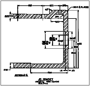
Zoom your display in to clearly see the Mandrel Rib Plate object.

In the next few steps, you will remove this object from the image.

3

Click Raster menuRemoveRectangular Region.

Click and draw a rectangle around the Mandrel Rib Plate and its title block, right-click, then click Enter to rub the region.

Further exploration: Rub other objects, except the Jig Bracket in the lower left corner. Use some of the other region types on the Remove menu to do this.

4

Zoom your display in to clearly see the Jig Bracket in the lower left corner.

In the next step you will create a crop region around this object.

5

Click Raster menuCropRectangular Region.

Click and draw a rectangle around the Jig Bracket and its title block, then click.

All of the image lying outside the crop region is deleted. If desired, you can save this Jig Bracket image with a new name.