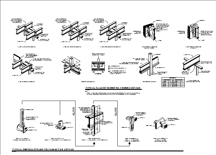
You can import a view from another CAD program and use it as a Revit drafting view. Then you can reference the drafting view for a callout or section, and place it on sheets in the construction documentation set.
Create panel
(Drafting View).
Import panel
