Cuadro de diálogo de Vista de la dimensión

Utilice este cuadro de diálogo para:

Vista — Seleccione la vista en la lista o haga clic en la vista del dibujo que desee.

Dimensiones globales — Active esta opción para visualizar las dimensiones X e Y en el elemento en la vista seleccionada, si todavía no están.

Agujeros:

Origen — Por defecto, está configurado como el origen de la vista. Si se cambia el origen, el origen de la vista se actualiza con la posición nueva. El origen se señala con líneas centrales.

Para cambiar el origen:

Introduzca las coordenadas X Y Z o haga clic en el botón de Posición para abrir el cuadro de diálogo de Posición, que permite utilizar herramientas de introducción de posiciones.

Disposición — Puede configurar la disposición del texto de las dimensiones de ordenada con las siguientes opciones:

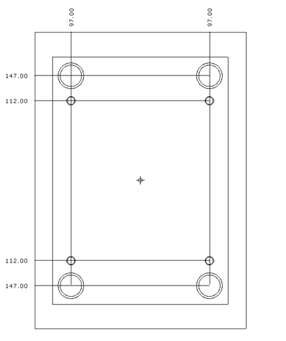
El siguiente ejemplo de una vista refleja la disposición de las dimensiones de un agujero con la opción de disposición de Superior izquierda.

Posicionar las dimensiones en el lado más cercano del modelo — Active esta opción para posicionar el texto de dimensión en el lado más próximo al centro del agujero. Esta opción funciona bien con placas de cientos de agujeros porque potencia la claridad del dibujo.

Desactive la opción para posicionar todas las dimensiones en un lado; la posición del texto de dimensión se configura activando las opciones de Superior izquierda, Superior derecha, Inferior izquierda o Inferior derecha.

Dirección del agujero — Seleccione los agujeros a los que se aplican dimensiones:

Dimensiones de los agujeros pretaladrados — Active esta opción para que se puedan aplicar dimensiones a placas con agujeros pretaladrados.

Si las dimensiones están cerca, las directrices se articulan automáticamente para que no se solapen.