Utilice la herramienta Mostrar líneas ocultas por elemento para visualizar elementos de modelo y elementos de detalle tapados por otros elementos en la vista actual.
La herramienta Mostrar líneas ocultas por elemento de la cinta de opciones permite realizar modificaciones en la visualización de gráficos de elementos individuales en la vista actual. Puede utilizar esta herramienta para elementos cuyas categorías tengan la subcategoría Líneas ocultas.
Nota: La herramienta Mostrar líneas ocultas por elemento no está disponible para:
- Vistas en perspectiva.
- Vista cuyo parámetro de vista Líneas ocultas esté configurado como Todas o Ninguna. (Debe estar configurado como <Por disciplina>).
- Elementos en modelos vinculados.
- Vistas cuyo parámetro Disciplina se establece en Electricidad, Mecánica o Fontanería.
Por ejemplo, hay una entrada en el alzado sur y desea mostrar un contorno de esta usando líneas ocultas en el alzado norte.
- Abra una vista en la que desee mostrar las líneas ocultas para un elemento tapado.
- (Si es preciso) Para mostrar las propiedades de vista en la paleta Propiedades, haga clic con el botón derecho en un área vacía de la vista y haga clic en Propiedades.
- En la paleta Propiedades, para Mostrar líneas ocultas, seleccione <Por disciplina>.
Nota: Las líneas ocultas especificadas mediante la herramienta Mostrar líneas ocultas por elemento se muestran únicamente cuando el parámetro de vista Mostrar líneas ocultas está definido en <Por disciplina>.
- En la barra de controles de vista, haga clic en Estilo visual: Estructura alámbrica.
El estilo Estructura alámbrica permite seleccionar el elemento ocultos que desea mostrar.
- Haga clic en la ficha Vista
grupo Gráficos
(Mostrar líneas ocultas por elemento).
- (Opcional) Para mostrar líneas ocultas para varios elementos, en la barra de opciones, seleccione Selección múltiple.
- Seleccione un elemento que esté ocultando a otro.
- Seleccione uno o más elementos tapados.
- En la barra de controles de vista, para Estilo visual, seleccione un estilo distinto a Estructura alámbrica.
Las líneas y los bordes tapados de estos elementos aparecerán como líneas ocultas.
- (Opcional) Para invertir los efectos de esta herramienta, cambie el estilo visual a Estructura alámbrica y haga clic en la ficha Vista
grupo Gráficos
(Eliminar líneas ocultas por elemento).
A continuación, seleccione el elemento que ocultará el elemento tapado, seleccione los elementos tapados y cambie el estilo visual de nuevo.
- Haga clic en Modificar para salir de la herramienta Líneas ocultas.
Para cambiar los estilos utilizados para mostrar las líneas ocultas en todo el proyecto, utilice el cuadro de diálogo Estilos de objeto.
Para cambiar los estilos utilizados únicamente para mostrar las líneas ocultas en esta vista, utilice el cuadro de diálogo Visibilidad/Gráficos.
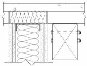
Ejemplo: mostrar líneas ocultas para componentes de detalle
En el ejemplo siguiente se ilustran los resultados obtenidos tras utilizar Mostrar líneas ocultas por elemento y seleccionar el entramado 4x6 y un perno. Se muestran las líneas ocultas de un perno, mientras que las líneas del segundo perno se tapan.

Nota: Los objetos deben ocupar el orden correcto. No es posible ocultar la líneas de un perno situado sobre un entramado 4x6. Primero tendrá que colocar el perno detrás del entramado 4x6. Para mostrar el perno con líneas ocultas, seleccione el entramado 4x6 y luego seleccione el perno.