Acerca de las líneas de separación de habitación

Utilice la herramienta Línea de separación de habitación para añadir y ajustar contornos de habitación.

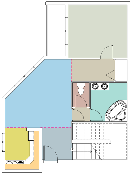
Las líneas de separación de habitación son elementos delimitadores de habitación. Resultan útiles para definir una habitación dentro de otra, por ejemplo, un área de comedor dentro de un salón sin muros intermedios. Las líneas de separación de habitación son visibles en vistas de plano y vistas 3D.

Si crea una habitación delimitada por muros, el área de la habitación se calcula por defecto desde la cara interior de los muros. Si añade huecos a los muros pero desea mantener separados los cálculos de áreas de habitación, debe crear líneas de separación de habitación a través de los huecos para que el área de habitación permanezca como se calculó al principio.