Etirez les connecteurs existants et ajoutez, déplacez et permutez des broches de connecteur.
La barre d'outils Insérer un connecteur contient des outils permettant de modifier les connecteurs et les broches de connecteur. Vous pouvez également ajouter, supprimer ou déplacer les broches trouvées à l'intérieur du connecteur.
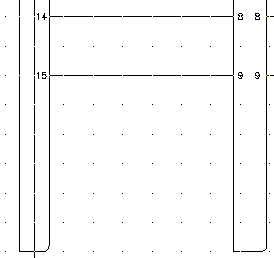
Etirement des connecteurs existants


. Trouver
Spécifiez l'extrémité du connecteur à étirer : Sélectionnez la partie inférieure de PJ1.
Spécifiez le deuxième point du déplacement :
Tirez le connecteur vers le bas en direction de la partie inférieure de la boîte noire 1


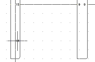
Ajout de broches de connecteur


. Trouver
Sélectionnez le connecteur : Sélectionnez PJ1.
Spécifiez le point d'insertion de la nouvelle broche ou [Réinitialiser] <16> :
Sélectionnez 4 espaces vers le bas à partir de la broche 15 sur PJ1, cliquez avec le bouton droit de la souris et appuyez sur Entrée
Le prochain numéro de broche disponible (16) s'insère au point sélectionné.



. Trouver
Sélectionnez le connecteur : Sélectionnez PJ6.
Spécifiez le point d'insertion de la nouvelle broche ou [Réinitialiser] <10> :
Sélectionnez la nouvelle broche 16 sur PJ1 pour insérer la broche 10 et l'aligner, cliquez avec le bouton droit de la souris et appuyez sur Entrée

Modification des broches de connecteur


. Trouver
Sélectionnez la broche de connecteur à déplacer : Sélectionnez la broche 16 sur PJ1.
Indiquez la nouvelle localisation de la broche 16 : Sélectionnez deux espaces vers le haut sur PJ1.
Sélectionnez la broche de connecteur à déplacer : Sélectionnez la broche 10 sur PJ6.
Indiquez la nouvelle localisation de la broche 10 :
Sélectionnez la broche 16 sur PJ1 pour aligner la broche 10, cliquez avec le bouton droit de la souris



. Trouver
Sélectionnez la broche de connecteur : Sélectionnez la broche 16 sur PJ1.
Sélectionnez la broche de connecteur à permuter avec l'élément suivant : Sélectionnez la broche 12 sur PJ1, puis cliquez dessus avec le bouton droit de la souris.


. Trouver
Sélectionnez le connecteur à inverser Sélectionnez le connecteur supérieur dans la lignée du fil, puis cliquez dessus avec le bouton droit de la souris.



. Trouver
Espacement des broches : 1.0
Nombre de broches : 2
Espacement fixe
Liste des broches : 1
Insérer tout
Spécifiez le point d'insertion ou [Z=zoom, P=panoramique, X=intersection des fils, V=horizontal/vertical, TAB=basculer] :
Placez le connecteur au-dessus de la boîte noire 1


. Trouver
Sélectionnez le connecteur à faire pivoter ou [Conserver] :
Sélectionnez le nouveau connecteur, cliquez avec le bouton droit de la souris et appuyez sur Entrée.
